压顶图纸

窗台压顶
图片尺寸655x486
电缆沟这个压顶一般是预制还是现浇图纸没说现浇要算两侧模板吗
图片尺寸1239x1083
这个窗台压顶的范围到哪里
图片尺寸615x397
花岗岩压顶
图片尺寸1112x772
压顶
图片尺寸667x1012
在画节点大样的时候窗台压顶一起画上去了但是窗户还没有画对钢筋算量
图片尺寸403x759
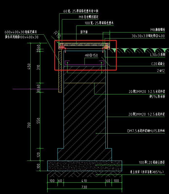
内容简介 某石材幕墙压顶节点构造详图 共1张图纸.
图片尺寸760x563
压顶大样图
图片尺寸1057x500
图3-29 女儿墙单层铝板压顶构造
图片尺寸612x550
压顶做法
图片尺寸992x575
这是一个围墙的顶部压顶这个角钢怎么计算啊
图片尺寸806x573
这个异型树池压顶的砼和钢筋的量要怎么算才准确
图片尺寸694x796
窗台压顶的钢筋大样一般在图纸上什么地方上看啊
图片尺寸737x380
请问这部分在柱子上的压顶怎么画出来呀
图片尺寸271x718
窗台压顶
图片尺寸1918x830
130041被赞:15386你好:看图上面是压顶,看图纸应该是砌体2017-07-20
图片尺寸509x761
这个压顶箍筋图纸上不带弯钩但是软件界面编辑里画出来有还要弯钩吗
图片尺寸1191x694
铝板压顶节点图
图片尺寸760x535
请问窗台压顶问题
图片尺寸777x663
压顶
图片尺寸727x569