厕所图例

卫生间布局
图片尺寸982x839
天正8 厕所图库卫生间的洁具图库
图片尺寸901x478
14j914-2:住宅卫生间
图片尺寸1600x1000
某景区厕所设计图
图片尺寸722x571
07j920:城市独立式公共厕所
图片尺寸1405x1011
每次上厕所地面都是湿的,生活品质严重受影响(长条形1500x2000mm)1500
图片尺寸1280x837
中式仿古风格公共厕所装修效果图纸
图片尺寸1024x819
卫生间小可以装浴缸吗
图片尺寸900x960
公共卫生间典型布置及做法
图片尺寸693x949
【dwg】卫生间大样图
图片尺寸650x417
公共厕所尺寸,厕所蹲坑尺寸标准(卫生间常用尺寸 附图例>)
图片尺寸640x853
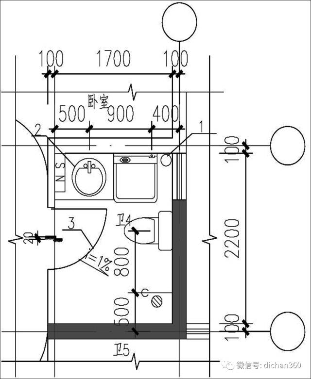
最新卫生间精细化设计精细到每一毫米
图片尺寸640x781
某卫生间设备布置图1设计任务用所提供的图例图289画出卫生间设备简图
图片尺寸700x1050
公共厕所卫生间cad平面图
图片尺寸1500x1377
01sj914住宅卫生间
图片尺寸1200x855
p>第三卫生间是在 a href="#" data-lemmaid="473788">厕所 /a>中专
图片尺寸470x419
最新卫生间精细化设计精细到每一毫米
图片尺寸857x942
附图1-2莲南路厕所平面图.jpg
图片尺寸1600x1280
6层简欧风格五星级酒店设计效果图方案文本及施工图纸
图片尺寸1190x839
简单公共厕所室内装修cad平面图
图片尺寸1024x713