厨房立面图cad
![[分享]室内厨房cad立面图资料下载](https://i.ecywang.com/upload/1/img2.baidu.com/it/u=645729568,4233510344&fm=253&fmt=auto&app=138&f=JPEG?w=560&h=420)
[分享]室内厨房cad立面图资料下载
图片尺寸560x420![[分享]立面图厨房资料下载](https://i.ecywang.com/upload/1/img2.baidu.com/it/u=3598329614,455438098&fm=253&fmt=auto&app=138&f=JPEG?w=640&h=480)
[分享]立面图厨房资料下载
图片尺寸640x480
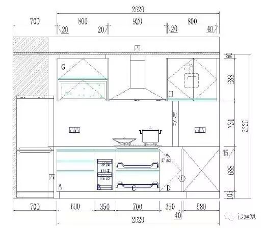
膨胀螺栓cad图库资料下载-厨房经典分空间cad立面图库
图片尺寸782x505
厨房立面图红色区域是经常使用的,厨房用具的存放位置,加起来有效使用
图片尺寸1280x709
立即下载 跪求: 两栋3层半别墅cad平面图,立面
图片尺寸560x420
转角橱柜cad设计效果图赏析,内部结构尺寸规格一目了然!
图片尺寸821x594
花20万装修50平老公房,看上海小两口怎么让小房子大起来
图片尺寸2040x1222
转角橱柜cad设计效果图赏析,内部结构尺寸规格一目了然!
图片尺寸820x606
分享cad厨房立面图下载资料下载
图片尺寸760x570
厨房立面设计图
图片尺寸400x560![[分享]立面图厨房资料下载](https://i.ecywang.com/upload/1/img1.baidu.com/it/u=216115765,2262166366&fm=253&fmt=auto&app=138&f=JPEG?w=560&h=420)
[分享]立面图厨房资料下载
图片尺寸560x420
分享厨房橱柜cad节点图资料下载
图片尺寸760x570
4平米小厨房实用设计搭配这款神器也能一应俱全
图片尺寸501x216
包括平面布置图,立面图,以及一些详图和部分厨房水槽的平立面图
图片尺寸560x352
一看就会的全屋定制报价方式商家绝对骗不到你预算立省30
图片尺寸750x477
分享中西厨房立面cad资料下载
图片尺寸760x570
厨卫空间立面图
图片尺寸560x420
厨房,卫生间改造攻略,匠工焕新解决你所有厨卫装修难题
图片尺寸550x337
分享厨房橱柜cad节点图资料下载
图片尺寸560x355
龙湖施工图设计审查总结太实用了
图片尺寸518x448