厨房设计平面图纸

厨房设计平面图_第1页
图片尺寸920x1302
动线设计丨厨房这样设计颜值与实用性兼具
图片尺寸750x1125
商用厨房设计
图片尺寸1344x888
幼儿园,学校食堂厨房平面图_第1页
图片尺寸2631x1860
最后画了个平面图发现厨房可用空间太少了,画画改改出了最终版.
图片尺寸1080x809
厨房设计
图片尺寸1080x1390
某户型住宅整体厨房装修设计cad施工方案图(甲级院设计)
图片尺寸1440x1020
分享一些监管部门对厨房设计的参考平面图
图片尺寸800x566
中西分离厨房平面图
图片尺寸549x414
星级酒店厨房平面图纸 - 图纸设计 建筑酷
图片尺寸1600x1280
动线设计丨厨房这样设计颜值与实用性兼具
图片尺寸750x1125
1分钟看懂厨房尺寸设计和水电位置
图片尺寸640x480
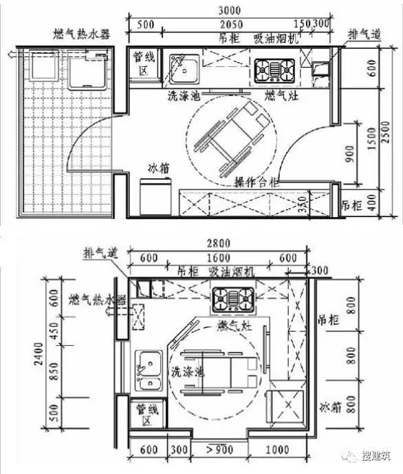
厨房精细化设计最需要的
图片尺寸586x688
某住宅户型整体厨房设计cad施工方案图纸
图片尺寸1440x1020
动线设计丨厨房这样设计颜值与实用性兼具
图片尺寸750x1125
室内整体厨房装修cad设计施工方案图纸
图片尺寸1440x1020
分享一些监管部门对厨房设计的参考平面图
图片尺寸800x566
小户型厨房装修设计cad施工图纸
图片尺寸1600x1280
整体厨房室内装修方案cad设计施工图
图片尺寸1020x1440
厨房设计平面图农村厨房设计
图片尺寸1472x1096