台型示意图

会议服务标准化之一会议常用台型及座次安排
图片尺寸553x316
会议常用台型及座次安排
图片尺寸344x365
边城档案:茨字二十四~二十六号台
图片尺寸1435x1791
中式餐台示意图
图片尺寸1080x810
益会会议室台型摆设指引(4种摆法)2014-11-6.docx
图片尺寸993x1404
供应桌上型jb-vd-850u净化工作台,洁净工作台,超净工作台
图片尺寸1256x561
免费文档 所有分类 高等教育 工学 西餐宴请礼仪ppt 2张西餐桌的桌型
图片尺寸1080x810
t字型卫浴三分离平面示意图
图片尺寸600x477
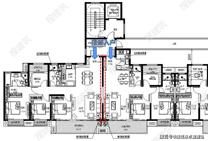
小阳春挑花眼了看过珑璟台上新户型再说
图片尺寸1079x1186
分户墙较短,做s型难度大,不适合,如下示意:示意图5「创新s墙」火爆
图片尺寸1038x588
汀澜瑧悦售楼处电话保利汀澜瑧悦售楼处发布24小时预约热线
图片尺寸660x356
湾湾所谓防务部门发的布解放军"联合利剑"军舰围台态势图
图片尺寸1707x1280
分户墙较短,做s型难度大,不适合,如下示意:示意图5「创新s墙」火爆
图片尺寸845x574
解放军军机绕台又有新动向四面包围台岛
图片尺寸660x430
时政新闻眼丨从五组关键词读懂习近平湖南之行
图片尺寸2777x1564
查看下一张图片 >>深圳万科未来之光建面约73﹐,80﹐,98﹐三款户型
图片尺寸1080x866
可容纳20-500人,布局灵活,有回字形,课桌型,u字型,座谈型等多种摆台
图片尺寸1080x810
房天下>房产快讯>宁德官方实播台>正文> ○网络示意图○网络示意图
图片尺寸1080x1296
房天下>房产快讯>宁德官方实播台>正文> ○网络示意图○网络示意图
图片尺寸1080x1440
深圳卓越闽泰云奕府建面约85㎡户型示意图3「s墙」尺寸考究以置放双
图片尺寸625x653