史南桥11平改造

设计师史南桥接下了这个艰巨的任务.
图片尺寸640x1009
梦想改造家︱史南桥超小户型改造前后对比.史南桥,一位资深建 - 抖音
图片尺寸1190x1587
11平方米一家四口看史南桥爆改梦想改造家六季以来最小住房
图片尺寸1066x1600
11平方米一家四口看史南桥爆改梦想改造家六季以来最小住房
图片尺寸660x764
上海11平住4口人!"空间魔法师"史南桥再现神改造
图片尺寸550x636
如何评价《梦想改造家 6 》第二期史南桥改造 11 平小户型?
图片尺寸720x480
梦改| 史南桥重修上海老洋房,打造中西合璧温馨住宅_改造_墙体_全屋
图片尺寸1080x1185
史南桥爆改23平麻雀变凤凰史南桥
图片尺寸1080x1440
上海11平住4口人!"空间魔法师"史南桥再现神改造
图片尺寸408x335
史南桥爆改梦想改造家超小户型11㎡错层住下4个人
图片尺寸640x427
大师案例x史南桥11㎡四口之家史上超小户型旧房改造
图片尺寸1080x1620
梦想改造家史南桥爆改11平米的旧居有爱才有家
图片尺寸1080x608
11㎡蜗居四口人,设计师"爆改"上海市中心"鸽子房",破屋变婚房,网友:我
图片尺寸1080x1482
梦想改造家大天使史南桥大师爆改23平小户型
图片尺寸1080x721
作品: 梦想改造家第九季-施展不开的家 地 点: 上 海设 计: 史南桥
图片尺寸1080x1440
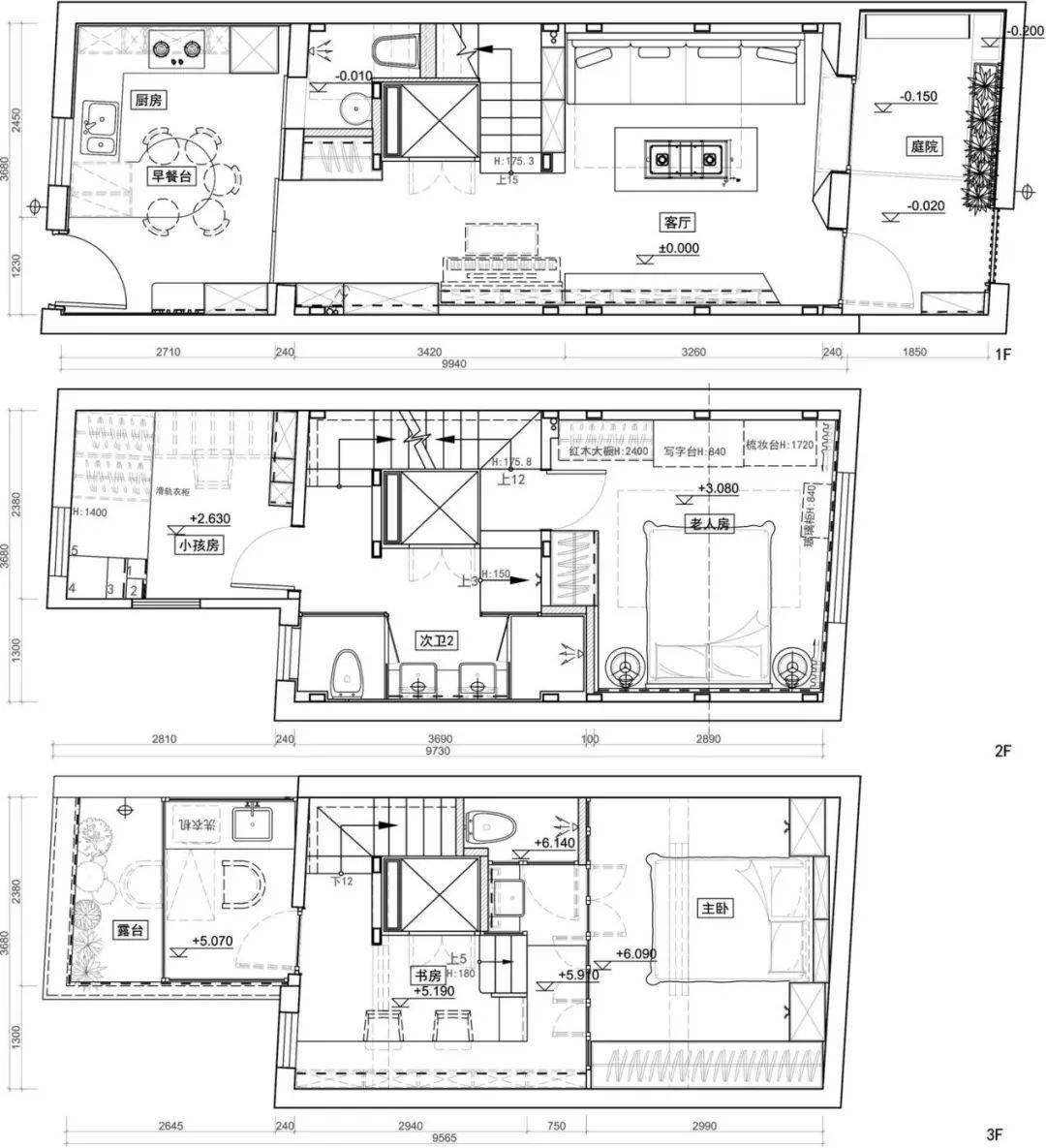
史南桥改造11平米案例 #售楼处案例 售楼处丨史南桥 一座跨越都市
图片尺寸1628x1017
梦改 | 史南桥极限改造六口之家,24㎡"迷宫"老宅换新颜
图片尺寸1080x1440
梦改 | 史南桥极限改造六口之家,24㎡"迷宫"老宅换新颜
图片尺寸1080x1440
梦想改造家第十季 老师的第十年.梦改全勤奖得主史南桥老师,十 - 抖音
图片尺寸1080x1920
立邦梦想改造家第六季史南桥爆改11㎡小户型
图片尺寸1071x753