吊顶吊杆反向支撑详图

反支撑吊顶节点.#制图 #图纸 #施工图深化 #cad画图 - 抖音
图片尺寸598x702
吊顶吊杆长度大于1.5m时,应设置反向支撑!
图片尺寸640x467
吊顶反支撑共1页
图片尺寸920x1302
13-1-8 顶棚反向支撑(一)构造节点图
图片尺寸881x701
设置反向支撑时应满足以下条件:②避免由于吊筋过长整个吊顶刚度不足
图片尺寸1242x902
室内设计中反支撑和转换层,有什么区别?_吊顶_吊杆_钢架
图片尺寸730x639
应调整并增设吊杆,吊顶面积较大时,吊顶设备排布复杂不建议使用反支撑
图片尺寸1066x696
13-1-10 顶棚反向支撑(三)构造节点图
图片尺寸1080x491
室内设计中反支撑和转换层,有什么区别?_吊顶_吊杆_钢架
图片尺寸731x518
吊顶是如何设计的?|楼板|卡扣|吊杆|天花板|卡槽式_网易订阅
图片尺寸660x378
吊顶的反支撑,转换层详解|楼板|构件|方向|吊杆|主龙骨_网易订阅
图片尺寸660x350
一种吊顶反支撑结构的制作方法
图片尺寸422x463
吊顶反支撑套什么定额
图片尺寸1144x434
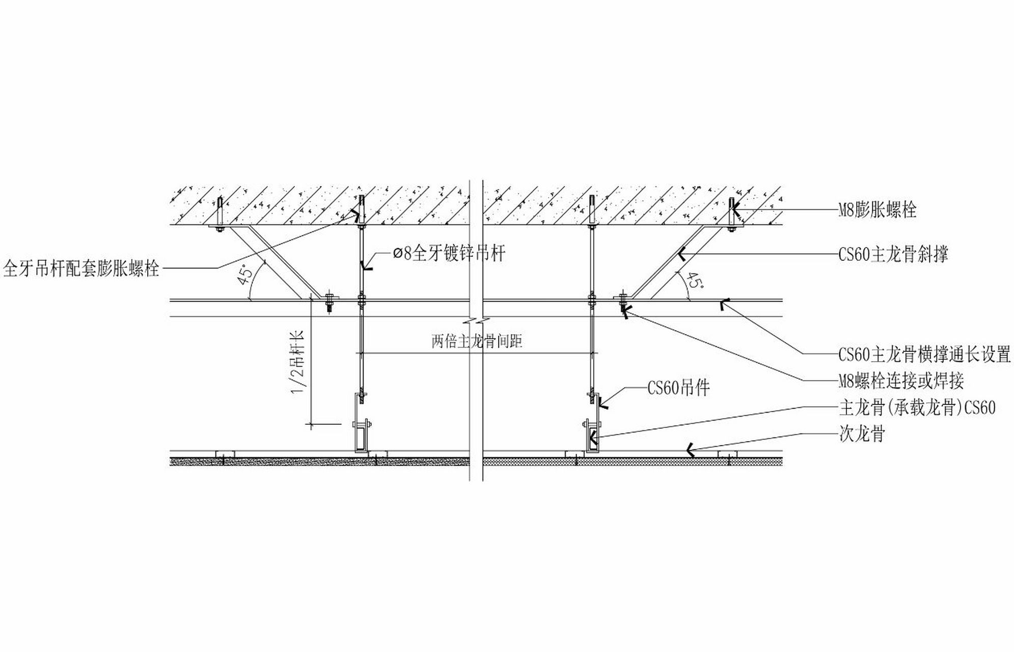
工艺节点提升第一期:吊顶反支撑,转换层 吊顶反支撑与转换层节点图
图片尺寸1991x1280
一种吊顶反支撑支架的制作方法
图片尺寸1000x850
吊顶反支撑(标准图集)
图片尺寸1080x739
cn201801992u_超长吊杆反支撑吊顶失效
图片尺寸1850x1451
设置反向支撑时应满足以下条件:②避免由于吊筋过长整个吊顶刚度不足
图片尺寸1229x1098
吊顶反支撑
图片尺寸893x306
吊顶反支撑施工技术交底
图片尺寸920x1302