后浇带传力构件

我见过最标准的后浇带施工现场!_混凝土_厦门市_模板
图片尺寸682x455![[提问]后浇带的传力工字钢的两端板起什么作用](https://i.ecywang.com/upload/1/img1.baidu.com/it/u=2482936272,3257463550&fm=253&fmt=auto&app=138&f=PNG?w=500&h=531)
[提问]后浇带的传力工字钢的两端板起什么作用
图片尺寸750x796
后浇带"单支单拆"节点做法
图片尺寸660x537
微改微创前:地下室外墙后浇带封挡采用200mm厚砖砌墙 防水砂浆的方式
图片尺寸559x421
几种后浇带的做法
图片尺寸626x422
建筑结构中后浇带施工的技术应用
图片尺寸277x304
后浇带支撑施工方案
图片尺寸640x431
地下室传力带施工资料下载-后浇带施工安全质量注意要点,精致后浇带全
图片尺寸635x415
底板后浇带样板.rfa
图片尺寸512x512
后浇带样板.rfa
图片尺寸512x512
后浇带采用这种模板,新老混凝土接触面不用凿毛,粘贴力还能增强
图片尺寸560x420
一种底板后浇带的传力装置及其施工方法与流程
图片尺寸1859x1578
施工后浇带 (建筑)
图片尺寸560x394
a)型钢传力带 b)混凝土传力带 后浇带处的传力型钢的设置
图片尺寸896x227
后浇带超前止水构造.docx 10页
图片尺寸860x1218
"后浇带"施工中应该检查哪些部位?(图文介绍)
图片尺寸1088x998
后浇带"单支单拆"节点做法
图片尺寸660x501
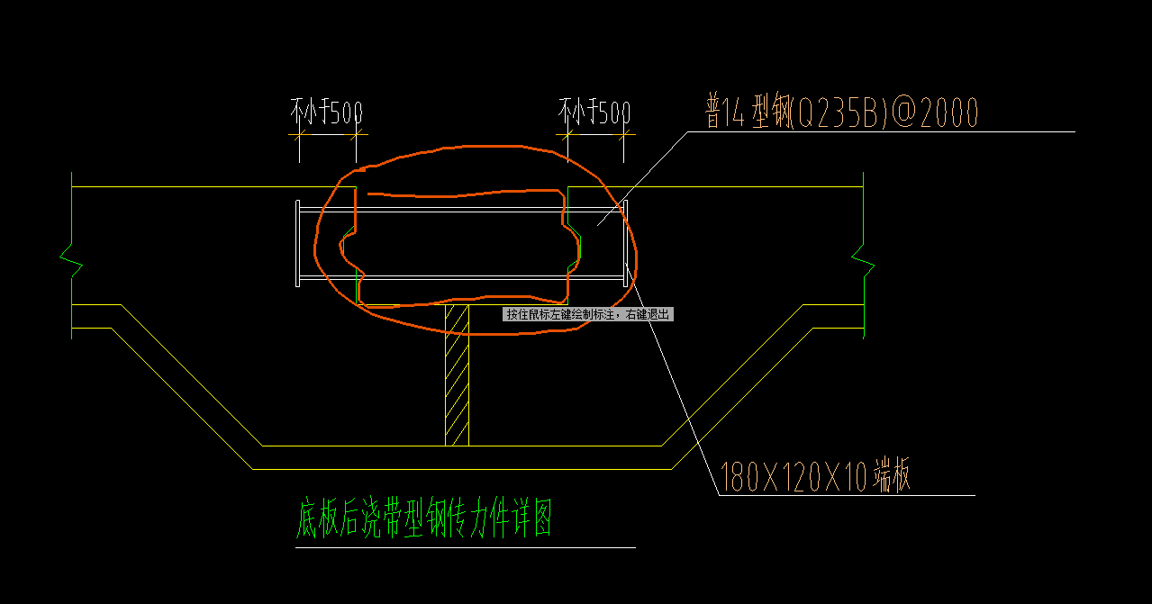
这个传力件怎么算量
图片尺寸1279x671
a)型钢传力带 b)混凝土传力带 后浇带处的传力型钢的设置
图片尺寸896x227
我见过最标准的后浇带施工现场!
图片尺寸767x575