咖啡书屋 平面图

约505平书馆书吧咖啡厅平面布置图/上篇.92建筑面积/约5 - 抖音
图片尺寸1440x2116
装修设计 #咖啡厅平面 - 抖音
图片尺寸922x606
150m0592咖啡馆平面布置图.cad代画,商业空间布置图, - 抖音
图片尺寸1920x1668
99户型优化:书吧改咖啡厅平面设计方案!99客户需求:(22 - 抖音
图片尺寸1918x952
荣宝斋咖啡书屋,二层平面图
图片尺寸658x465
从cad平面布局7915su草图建模推敲方案#装修 #咖啡店设计 #店铺
图片尺寸1080x1107
咖啡厅馆店设计原创二层平面布置图图 一层看上一个笔记 平面布置图 !
图片尺寸1876x1280
猫咖设计方案.#施工图 #猫咖设计图纸#咖啡厅设计 #cad - 抖音
图片尺寸1259x816
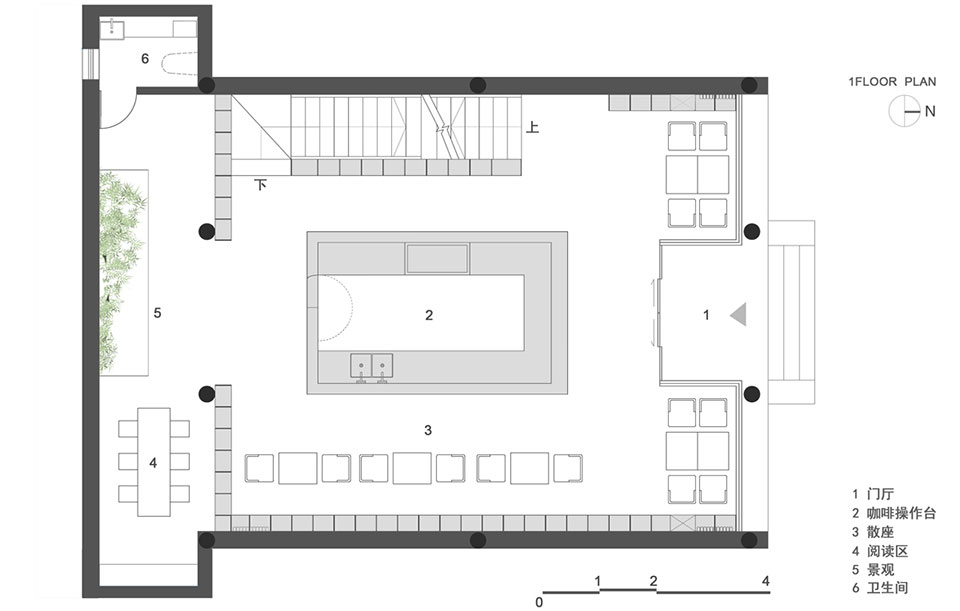
荣宝斋咖啡书屋,北京 / 建筑营 - 谷德设计网
图片尺寸960x611
遇见——咖啡店 书吧
图片尺寸2305x1478
哥伦比亚9 书店咖啡馆平面图
图片尺寸2000x1617
书店升级改造
图片尺寸3291x2183
咖啡书屋老字号书店荣宝斋的一次大胆尝试
图片尺寸1200x830
本方案结合了咖啡厅,简餐厅,书咖,服装店的基本功能,空间用料以清水泥
图片尺寸3252x2048
平面布置图.jpg
图片尺寸2176x1586
丽水淤溪书屋
图片尺寸1706x2300
咖啡店书店施工图深化设计案例
图片尺寸1080x1004
书店|平面|其他平面|无聊的我 - 原创作品 - 站酷 (zcool)
图片尺寸2480x3508
"见匠书屋"——书店兼咖啡厅设计
图片尺寸2897x2048
ins风少女情怀可爱咖啡厅
图片尺寸3000x1962