四合院设计图

大建筑里的小故事——献礼百年实小!我们的四合院
图片尺寸1184x808
中式四合院设计,住宅的典范
图片尺寸1160x918
四合院设计,亭台楼阁,白墙灰 - 抖音
图片尺寸2000x1667
润润四合院设计 # - 抖音
图片尺寸1895x1726
房山四合院
图片尺寸1500x2506
北京四合院的介绍 四合院又称四合房,是一种中国传统高档合院式建筑
图片尺寸1602x1280
12款四合院设计案例,款款是经典.都是一进空间,都是方正格局 - 抖音
图片尺寸1370x1197
给大家分享两套中式的四合院设计,希望大家能喜欢.
图片尺寸640x794
农村四合院别墅设计,带庭院 96农村建房很多人都想有个院子,在院中
图片尺寸1280x1280
新中式四合院别墅设计,经典大气
图片尺寸3769x3088
超美的中式四合院设计图纸这才是真正的豪宅
图片尺寸1545x1820
商铺客栈四合院
图片尺寸1617x2203
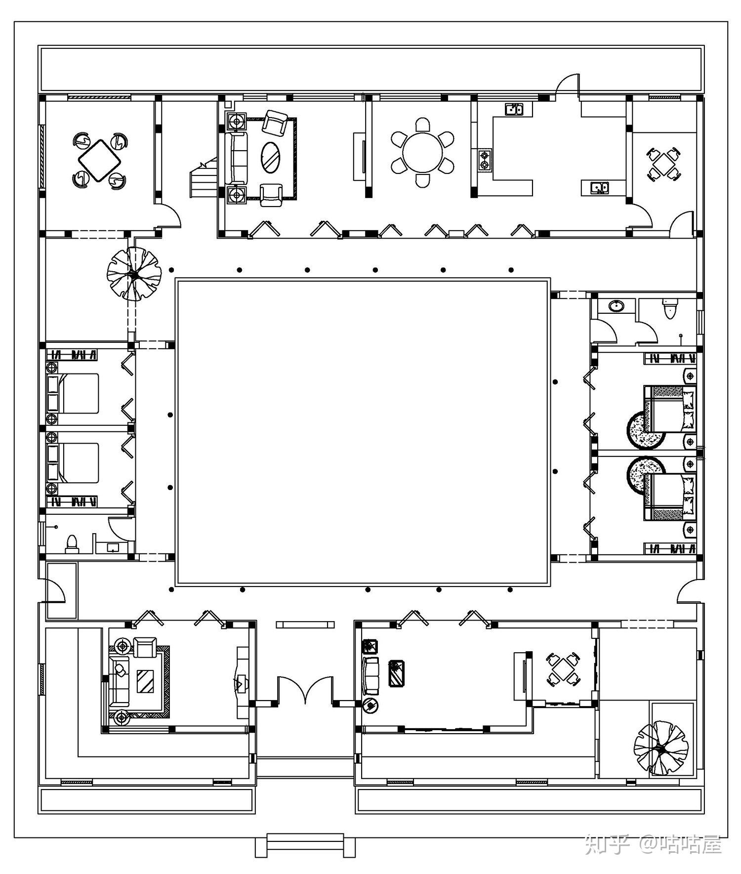
▼四合院图纸设计
图片尺寸1500x1769
中国中式四合院设计效果图
图片尺寸640x1138
【图】雕刻艺术家郑希成绘制的四合院布局图张张精彩_15_恋爱物语
图片尺寸600x420
博大精深的中式四合院设计文化
图片尺寸500x1094
标准型仿古四合院建筑工程【东方晨光】
图片尺寸1000x910
占地16x39一层自建四合院设计全套施工图
图片尺寸985x1600
【】最美中国传统四合院设计图 【20套】
图片尺寸2000x2929
徽式四合院设计图
图片尺寸1214x825