四肢箍筋图片

二肢箍是指梁或柱钢筋中沿梁,柱截面高度方向箍筋的肢数是2; 四肢箍
图片尺寸573x303
四肢如图一平面内同一方向所示箍筋有四条肢
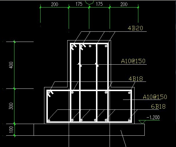
图片尺寸560x420
四肢箍
图片尺寸512x384
四肢箍筋是不是就是四根钢筋的意思
图片尺寸493x279
四肢箍筋长度计算公式
图片尺寸462x475
请问四肢箍是什么意思应该选用哪个配筋形式呢
图片尺寸842x495
四肢箍箍筋的长度如何计算跟负筋的摆放一排7Ф25.底筋5Ф25点摆放?
图片尺寸185x302
表示箍筋在某个方向的的根数,如4*4
图片尺寸620x375
箍筋肢数区分(单肢箍,双肢箍,四肢箍等)
图片尺寸605x693
四肢箍的箍筋长度怎么算
图片尺寸438x281
4肢箍筋内箍怎么计算
图片尺寸355x320
建筑图纸上表示的箍筋四肢是什么意思 要怎么在柱子上绑好箍筋
图片尺寸1600x1280
箍筋肢数区分单肢箍双肢箍四肢箍等
图片尺寸624x601
我想知道双肢箍和四肢箍是一个什么概念?
图片尺寸445x600
250x600的梁钢筋能做4支箍吗?
图片尺寸488x588
箍筋安装从基础插筋开始,仔细计算接头高度,定尺加工.
图片尺寸972x943
2,4支箍筋
图片尺寸828x500
四肢箍
图片尺寸607x505
箍筋中的单肢箍,双肢箍,四肢箍是怎么回事 - d2.
图片尺寸658x293![[分享]kz1 箍筋没有注明是四肢箍还是两支箍筋,事从断面图看出的还是](https://i.ecywang.com/upload/1/img1.baidu.com/it/u=2125050223,2273235688&fm=253&fmt=auto&app=138&f=PNG?w=528&h=405)
[分享]kz1 箍筋没有注明是四肢箍还是两支箍筋,事从断面图看出的还是
图片尺寸528x405