回迁房户型图

陈家河回迁房全明户型前排无遮挡看房方便价格可议
图片尺寸1080x1920
海珠沥滘村 首批回迁房 摇珠分房~ 1522套!
图片尺寸640x745
回迁房户型图
图片尺寸2667x2000
南高营(恒大回迁二区) 2室2厅1卫,南高营二手房,69万,2室2厅,1卫,90
图片尺寸1440x1080
新上南街回迁三居两居
图片尺寸864x1910
户型超棒,回迁房里很少见.客厅大落地窗.
图片尺寸682x978
昌平区北辛安樱花苑回迁房.97 出售:石景山区北辛安回迁房项 - 抖音
图片尺寸1080x2008
南山向南村一期,二期回迁房户型图及部分回迁房签约合同展示!
图片尺寸800x1422
广州天河珠江新城中冼村回迁房珠江新城 冼村小区 电梯三房 近地铁
图片尺寸600x450
稀缺房源北二环西城区德胜门小西天东里回迁房673平朝南1居850万付款
图片尺寸1440x1920
南苑村回迁安置房已经交房了,环境真不错啊
图片尺寸935x1920
广州天河珠江新城中冼村回迁房冼村大户型两房 格局方正温馨舒适 配套
图片尺寸600x450
昌平天通苑,【歇甲村回迁房】,90平,南北两居,期房.
图片尺寸690x838
公摊小,绿化率高,容积率低!保定城中村回迁房装修标准及户型!
图片尺寸640x452
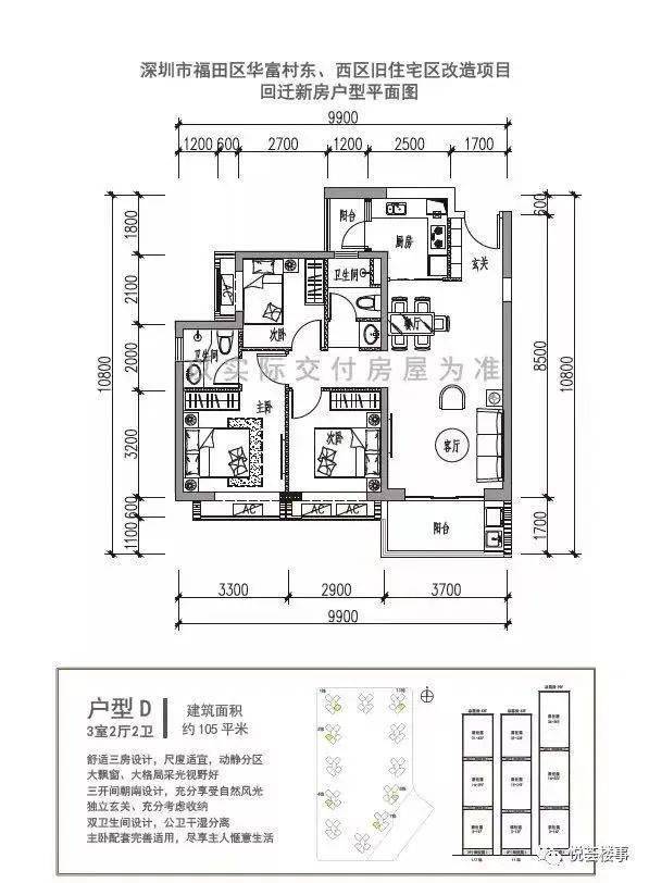
华富村回迁房能卖了?_户型_业主_公园
图片尺寸597x812
泓泰花园回迁村企房单价仅9500
图片尺寸1080x1454
陈家河回迁大产权可过户靠近 交通便利停车方便元宝全明大厨房
图片尺寸1264x1404
南街回迁两居,三居,两居,一居.3居114.83米,南北通透 - 抖音
图片尺寸1080x1440
南苑村回迁房一居两居三居出售
图片尺寸1920x2560
泓泰花园回迁村企房单价仅9500
图片尺寸1080x1454