图集07fj02第111页

求图集07fg02110页与111页内容截图
图片尺寸723x498
07fj02人防图集第110页
图片尺寸906x628
求图集07fg02110页与111页内容截图
图片尺寸722x503
钢爬梯
图片尺寸1394x835
请问这个集水坑盖板应该如何配筋图集没看懂
图片尺寸1280x811
电气人防图集07fd02
图片尺寸1263x893
请问这个集水坑怎么布置图集上的做法需要标注吗
图片尺寸1082x703
07f亅02图集103页照片
图片尺寸450x314
答:爬梯栏杆07fj02 第84页大样图集如图
图片尺寸600x407
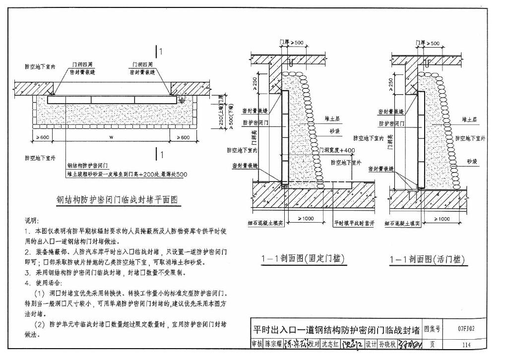
求防空地下室建筑构造07fj02第114页请问哪位前辈有
图片尺寸1020x734
07fj02图集内容高清无水印,用户可使用07fj02图集免费查看107页,111页
图片尺寸900x592
07fj02:防空地下室建筑构造
图片尺寸2004x1402
集水井盖板图集07fj02住宅通病详细图集及工序节点规范做法图文详解
图片尺寸506x550
07fj02人防建筑图集pdf格式
图片尺寸704x493
07fs02防空地下室给排水设施安装
图片尺寸1500x1042
07fj02 防空地下室建筑构造x.pdf
图片尺寸800x565
07fj03:防空地下室防护设备选用
图片尺寸1906x1331
07fj02:防空地下室建筑构造
图片尺寸2005x1409
07fj02人防建筑图集高清pdf电子版无水印可下载打印
图片尺寸2504x891
07fj02人防建筑图集高清pdf电子版无水印可下载打印
图片尺寸2500x890