圈梁平面图

请问这个地圈梁的长度怎么看
图片尺寸1728x2304
这个圈梁体积怎么算的.能详细说说么.实在看不懂长度怎么算的.
图片尺寸2448x3264
底角圈梁平面图
图片尺寸697x654
这个图纸圈梁的范围是哪
图片尺寸779x549
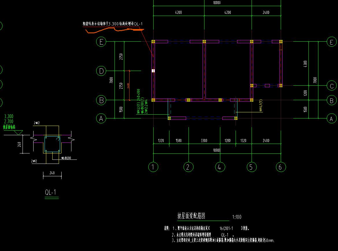
屋面顶的圈梁是用ql-1去绘制吗,2和3的圈梁要不要绘制,绘制在哪.
图片尺寸1169x867
圈梁的布置原则
图片尺寸920x634
求教砖混结构圈梁布置范围
图片尺寸994x773
基础圈梁的布置
图片尺寸893x598
这个图纸圈梁的范围是哪
图片尺寸995x542
关于砖混结构中的圈梁
图片尺寸991x787
圈梁布置图
图片尺寸725x913
构造柱圈梁这句话该怎么理解求详细谢谢您
图片尺寸859x481
圈梁300*250,能放下柱子吗?
图片尺寸703x535
这个圈梁怎么画呢
图片尺寸1010x767
圈梁配筋示意图
图片尺寸477x336
圈梁
图片尺寸1569x703
能用红线画一下圈梁的范围吗?
图片尺寸761x495
基础圈梁
图片尺寸1136x844
老师们,没有给圈梁怎么建模,结合两张图
图片尺寸864x836
二构用圈梁如何定义
图片尺寸861x688