地梁构造

大佬们看下这个地梁中部构造钢筋应该到筏板顶吗
图片尺寸580x1257
大神们我想请教一下图二的剖面图地梁上面400厚和150厚的也是基础的嘛
图片尺寸650x890
这种地梁怎么画
图片尺寸999x614
请问这样的地梁怎么定义
图片尺寸595x556
梁怎么读(梁怎么读组词)
图片尺寸800x600
广联达中如何设置地梁与独立基础间的加强构造
图片尺寸704x530
大家好图中的地梁的顶部是平齐于独立基础的顶还是地梁的底平齐于独立
图片尺寸1377x754
这个地梁用什么构件定义钢筋如何输入
图片尺寸439x440
地梁配筋
图片尺寸781x473
地梁就是基础梁吗
图片尺寸425x496
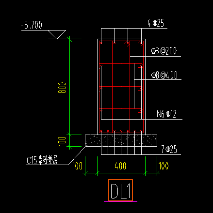
地梁dl1钢筋信息如何输入
图片尺寸1057x803
帮忙解答一下这种地梁的问题.
图片尺寸459x337
地梁的钢筋怎么算量
图片尺寸459x483
地梁属于基础梁吗?地梁是怎样锚固桩基里的,有专门的规范要求吗
图片尺寸360x476
dl地梁
图片尺寸861x653
承台标高和地梁标高各是多少
图片尺寸505x460
地梁比桩承台高对嘛
图片尺寸1223x665
梁构造通用图及说明 (结施03g101-1)
图片尺寸3630x2771
怎么在广联达里输入地梁我看不懂剖面图
图片尺寸481x480
这个地梁怎么手算钢筋重量
图片尺寸577x478