地砖平面

地砖简单拼花怎么铺设?
图片尺寸1080x1068
地砖
图片尺寸600x600
750x1500地砖横铺还是竖铺比较好? 万能的 各位大神求帮看
图片尺寸1685x1280
瓷砖拼花设计
图片尺寸1248x928![[资料]82中地砖铺设方案效果图,太全了](https://i.ecywang.com/upload/1/img0.baidu.com/it/u=3960389531,2066429010&fm=253&fmt=auto&app=138&f=JPEG?w=441&h=500)
[资料]82中地砖铺设方案效果图,太全了
图片尺寸1000x1134
装修70天我的70平大地砖通铺终于要完工了
图片尺寸1080x1439
正常一块地板砖多少厘米
图片尺寸500x498
地砖排版
图片尺寸744x992
60通体麻面防滑地砖厨房卫生间厕所洗手间纯色平面墙砖服装店瓷砖
图片尺寸1080x1080
马可波罗的设计师发来两张餐厅地砖的效果图,两种颜色的走边,各位看客
图片尺寸631x434
地砖135
图片尺寸658x658
7501500地砖排版选哪一个
图片尺寸944x1006
美陶瓷砖全抛釉面迪拜原石客厅地砖800x800卧室地板砖墙砖大理石效果
图片尺寸790x1040
急客厅加过道加阳台地砖设计方案
图片尺寸800x688
80款瓷砖铺贴平面图效果图能想到的铺贴方案imola统统教给你
图片尺寸523x600
p>地砖是一种地面 a href="#" data-lemmaid="2471">装饰材料 /a>,也
图片尺寸1024x802
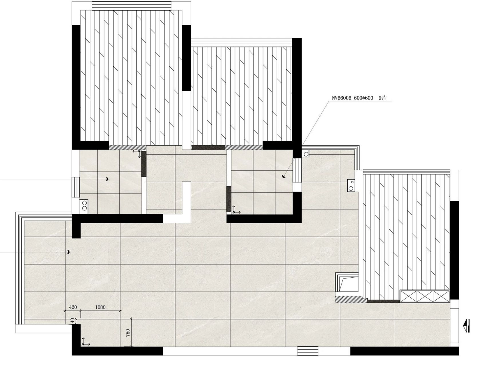
这是设计地砖的平面图,现在不知道如何计算加工尺寸,求高手计算
图片尺寸1280x960
地砖地板 - 热门商品专区
图片尺寸966x435
贴一平方地砖要多少沙水泥
图片尺寸450x507
请问这种实景地砖平面铺贴图用什么软件如何制作的?
图片尺寸1600x1254