坐南朝北农村户型设计

宅基地条件千差万别,稀缺型坐南朝北的户型找到啦!
图片尺寸1400x1404
第1套:坐南朝北设计,室内南北通透,现代厨房 多套卧设计,毛坯造价50万
图片尺寸640x927
坐南向北,面宽8米进深10米的房子怎样设计?
图片尺寸2000x2889
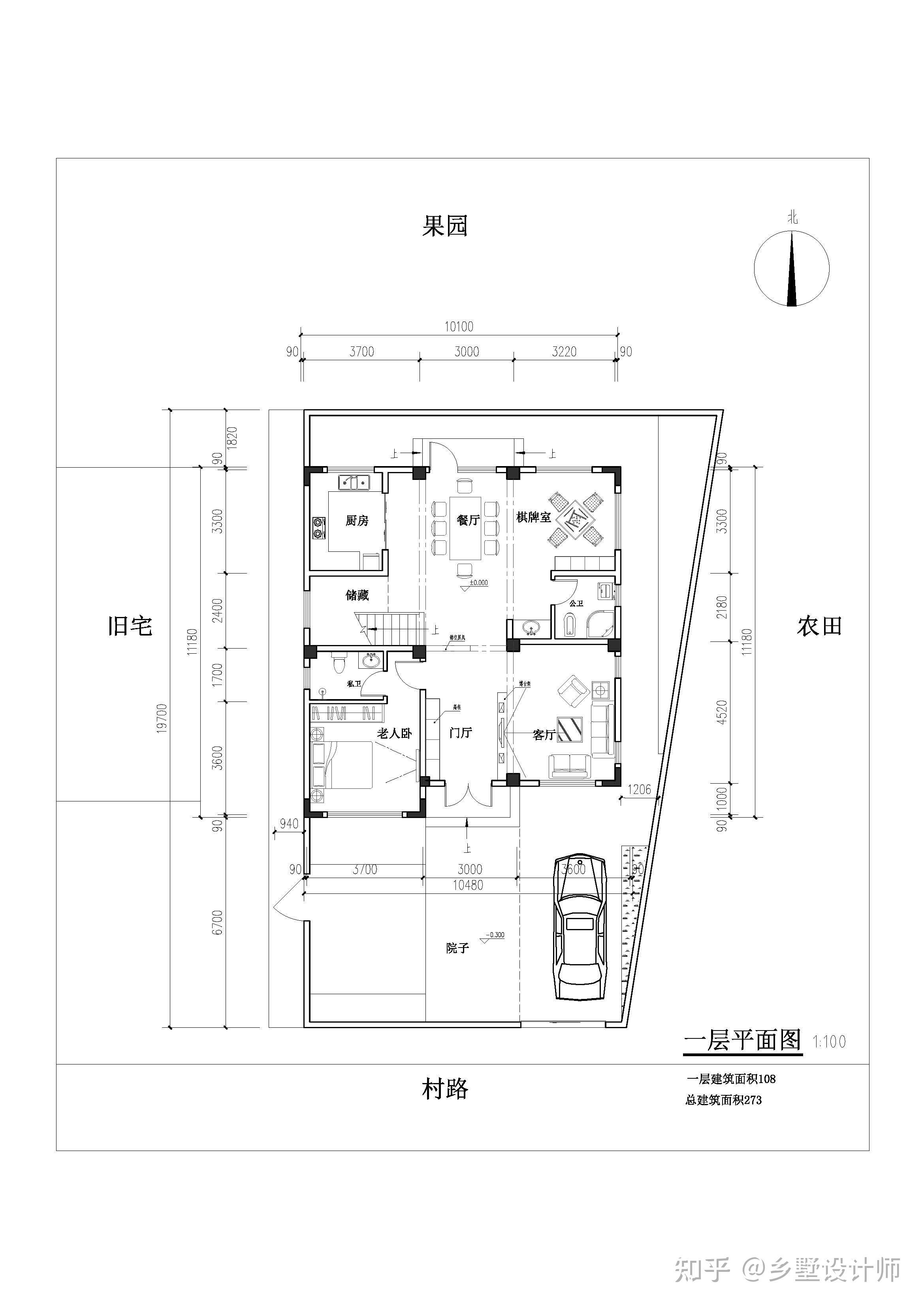
农村自建房,进深13米宽11米座北朝南怎么设计?
图片尺寸640x767
坐南向北面宽8米进深10米的房子怎样设计
图片尺寸2000x3063
农村坐南朝北的"绝佳"户型,现代二层别墅带地下室,尽享纯净!
图片尺寸640x618
农村坐南朝北的"绝佳"户型,现代二层别墅带地下室,尽享纯净!
图片尺寸640x601
开间11米进深12米坐南朝北的自建房怎么设计图纸
图片尺寸736x636
1117米坐南朝北欧式别墅挑空客厅多套间打造舒适农村生活
图片尺寸1080x1700
坐南朝北的农村自建房,占地95平,造价30万,现代别墅不设罗马柱
图片尺寸640x842
农村一处30米×13米,坐南朝北的宅基地,想建一层,怎么设计好?
图片尺寸640x537
开间11米进深12米坐南朝北的自建房怎么设计图纸
图片尺寸2339x3309
开间11米进深12米坐南朝北的自建房怎么设计图纸?
图片尺寸676x675
坐南朝北的房子真的不好吗?告诉你真相!
图片尺寸532x407
长宽12乘12,坐南朝北,一层厅堂2房,二三层3房,每层的房间怎么设计?
图片尺寸640x680
请高手指点哈这套2户型的风水,a户型是坐北朝南,b户型是坐南朝北,哪套
图片尺寸695x703
长宽12乘12,坐南朝北,一层厅堂2房,二三层3房,每层的房间怎么设计?
图片尺寸550x509
坐南朝北方位,如何设计农村别墅,乡村民宿?_阳光房_枫桥号
图片尺寸1080x1109
农村自建房,进深13米宽11米座北朝南怎么设计?
图片尺寸640x756
坐南朝北的农村自建房,占地95平,造价30万,现代别墅不设罗马柱
图片尺寸640x828