塔楼结构图

它们的建筑材料和构成方法也不尽相同,但是,这些古塔的基本结构却 是
图片尺寸600x846
某地区某古建塔设计cad立面图纸
图片尺寸610x861
二 稳定结构的探析
图片尺寸400x700
古代的超高层建筑塔
图片尺寸474x708
塔身: ① 塔身是古塔结构的主体.
图片尺寸600x878
地宫是我国佛塔特有的结构,与古代帝王陵寝的地下宫殿相似,地宫是用
图片尺寸465x405
某塔架构造cad详图
图片尺寸610x861
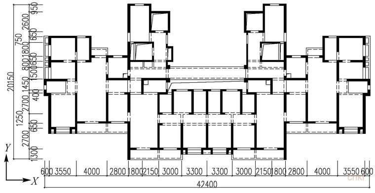
a 栋塔楼标准层结构平面布置图
图片尺寸583x431
某地高层瞭望塔cad设计详图_钢结构_土木在线
图片尺寸610x861
佛山苏宁地标塔楼结构设计及bim应用(ppt,35页)
图片尺寸426x392
锦江文创产业中心塔楼结构设计2020
图片尺寸760x754
塔楼
图片尺寸650x488
南塔各塔楼典型楼层平面图
图片尺寸569x411
汪盈:辽代楼阁塔构造问题初探——基于田野考古发掘的观察
图片尺寸1080x642
七层古塔混凝结构建筑施工cad图
图片尺寸610x861
某塔架构造cad详图
图片尺寸610x861
住宅塔楼 商业裙房 洋房 幼儿园全套结构图
图片尺寸760x570
典型塔楼(a11)标准层结构平面图
图片尺寸760x392
重庆国金中心t2塔楼结构设计
图片尺寸507x476
塔楼平面标准层
图片尺寸560x364