壁灯cad平面图
![[分享]壁灯室外su资料下载](https://i.ecywang.com/upload/1/img1.baidu.com/it/u=4268197575,2354338855&fm=253&fmt=auto&app=138&f=JPEG?w=335&h=531)
[分享]壁灯室外su资料下载
图片尺寸335x531
分享中式青花瓷壁灯cad资料下载
图片尺寸560x273
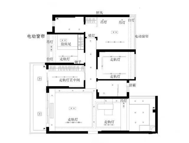
九,嵌壁灯安装示意图:八,水下地埋灯安装示意图:七,地埋灯安装示意图
图片尺寸476x463
室内专属图例图标cad图库,你必须拥有!
图片尺寸401x424
写字楼电梯厅01筒灯基础照明 筒灯重点照明02悬吊支架间接照明 壁灯洗
图片尺寸640x382
壁灯洗墙03壁灯洗顶 灯盘重点照明04组合式支架基础照明 导轨射灯06
图片尺寸640x432
装修灯光布局没做好几十万的装修费都打了水漂
图片尺寸640x483
灯光效果这么差怎么算是经过了装修
图片尺寸870x456
读住宅照明线路图多以施工(安装)图的形式出现,有平面图和系统图两种
图片尺寸646x357
超全cad图例符号画法大全,看过的都收藏了.
图片尺寸640x1404
前域照明丨学起来,会议室布灯方式(图解)|射灯|筒灯|壁灯|灯盘_网易
图片尺寸500x544
前域照明丨学起来,会议室布灯方式(图解)|射灯|筒灯|壁灯|灯盘_网易
图片尺寸470x371
前域照明丨学起来,会议室布灯方式(图解)|射灯|筒灯|壁灯|灯盘_网易
图片尺寸470x367
cad冷门知识解读统计图形对象的数量如何统计
图片尺寸353x213
户外壁灯室外防水庭院大门太阳能围墙中式别墅露台led灯阳台壁灯 黑色
图片尺寸350x350
照明灯厂房天棚灯亮路灯壁灯外墙壁灯75w白光照120平方高亮led投光灯
图片尺寸790x812
中山市琳枫灯饰 — 仿云石壁灯优质供应商
图片尺寸1080x732
原创设计师绝对不能错过的cad绘图资料集
图片尺寸751x1353
1,管井及强,弱电井照明为3回路进线,电井壁灯开关处的4根线是否代表着
图片尺寸755x620
现代极简轻奢金属收口60款cad大样图
图片尺寸955x744