外墙结构

浅谈幕墙结构的分类及特点
图片尺寸644x374
幕墙分类及细分知识体系结构知识2018版
图片尺寸525x278
幕墙铝单板结构图
图片尺寸500x374
建筑外墙结构铝框玻璃幕墙建筑
图片尺寸525x525
干挂石材幕墙结构及维修_第1页
图片尺寸920x1302
钢结构房屋外墙可以用些什么材料?-你问我答网
图片尺寸600x399![[分享]单元式幕墙的典型结构分析资料下载](https://i.ecywang.com/upload/1/img2.baidu.com/it/u=1442111918,103226243&fm=253&fmt=auto&app=138&f=PNG?w=467&h=341)
[分享]单元式幕墙的典型结构分析资料下载
图片尺寸467x341
扎哈澳门摩珀斯酒店全球首个自由形态外骨骼网架结构幕墙是怎么实现的
图片尺寸437x353
南县人民医院异址新建项目的幕墙结构由于弧线导致的幕墙板块尺寸
图片尺寸763x787
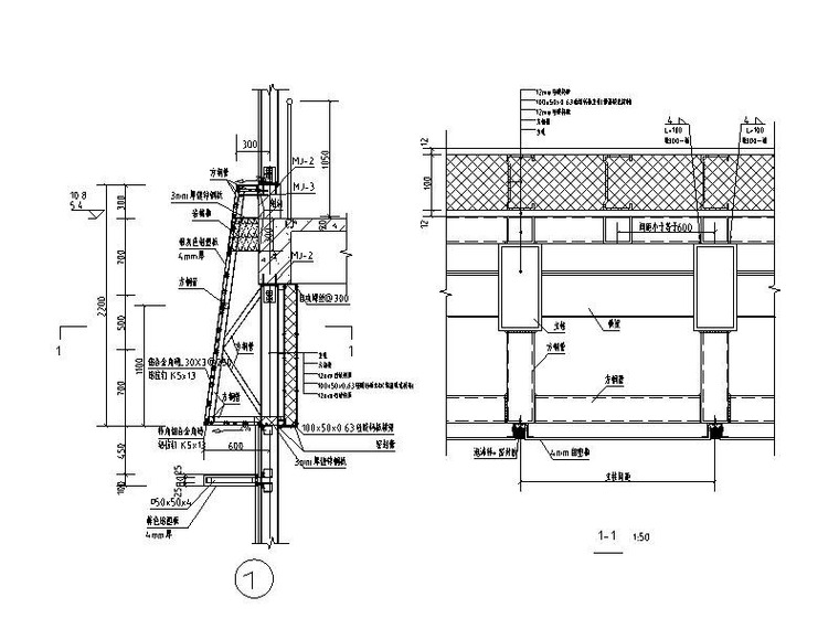
某吊挂式玻璃幕墙节点构造详图(十四)(横向标准图)-幕墙结构节点详图
图片尺寸596x540![[分享]幕墙结构节点图片资料下载](https://i.ecywang.com/upload/1/img0.baidu.com/it/u=1293090356,2952215928&fm=253&fmt=auto&app=138&f=JPEG?w=332&h=447)
[分享]幕墙结构节点图片资料下载
图片尺寸332x447
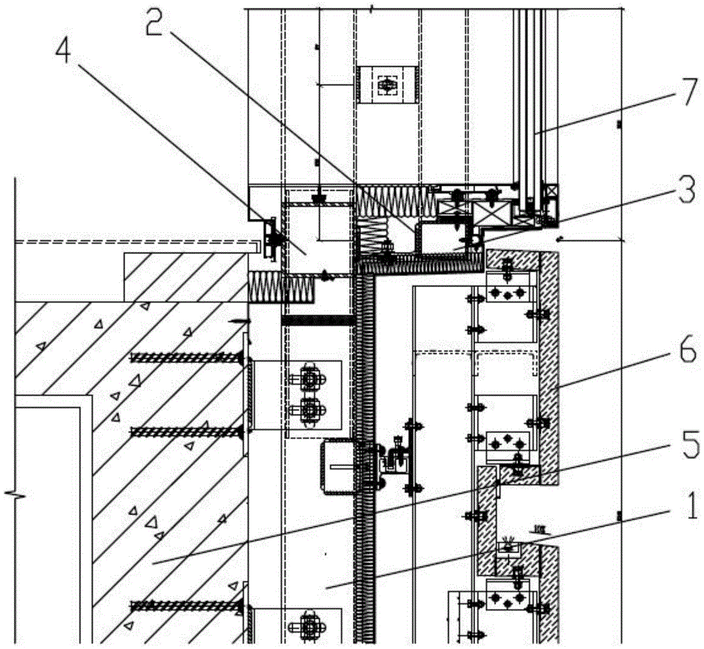
cn209603352u_一种钢铝组合幕墙结构
图片尺寸1000x922
广州渝锦诚钢结构工程
图片尺寸800x592
系统性讲述幕墙的基础知识,结构,节点,施工,图文并茂,晋升必备!
图片尺寸640x480
cn209194794u_一种新型构件式隐框玻璃幕墙等压腔结构有效
图片尺寸1000x850
研发中心管理大楼幕墙图纸_半隐框玻璃幕墙-幕墙结构施工图-筑龙结构
图片尺寸760x570
浅谈幕墙结构的分类及特点(3)
图片尺寸543x374
教学式讲解点支承玻璃幕墙结构设计要点
图片尺寸1380x899
玻璃幕墙系统介绍(ppt,71页)-结构培训讲义-筑龙结构设计论坛
图片尺寸439x337
一种建筑保温外墙结构的制作方法
图片尺寸892x1000