大学寝室立面图

某大学宿舍单间测绘及改造 平,立面
图片尺寸696x464
日本城西大学国际学生宿舍studiosumoandobayashicorporation
图片尺寸650x461
一高校宿舍立面图
图片尺寸708x427
单元平面图△立面图△平面图项目信息建筑设计 : cche, 隈研吾建筑
图片尺寸1200x1600
3x3x3m 二人寝室设计和漫游动画 - 大学生设计广场 - e拓建筑网
图片尺寸2000x1500
校区规划立面图
图片尺寸560x259
理工大学学生宿舍设计
图片尺寸841x594
跪求四人间宿舍平面图,立面图,做成ppt,简单介绍设计思路.
图片尺寸580x314
宿舍建筑立面及剖面图
图片尺寸920x1302
本资料为学生宿舍建筑施工图三,其中内容包括:平面图,剖面图,立面图
图片尺寸610x432
立面图
图片尺寸820x467
开合室内设计小空间改造设计10女生宿舍
图片尺寸1124x1589
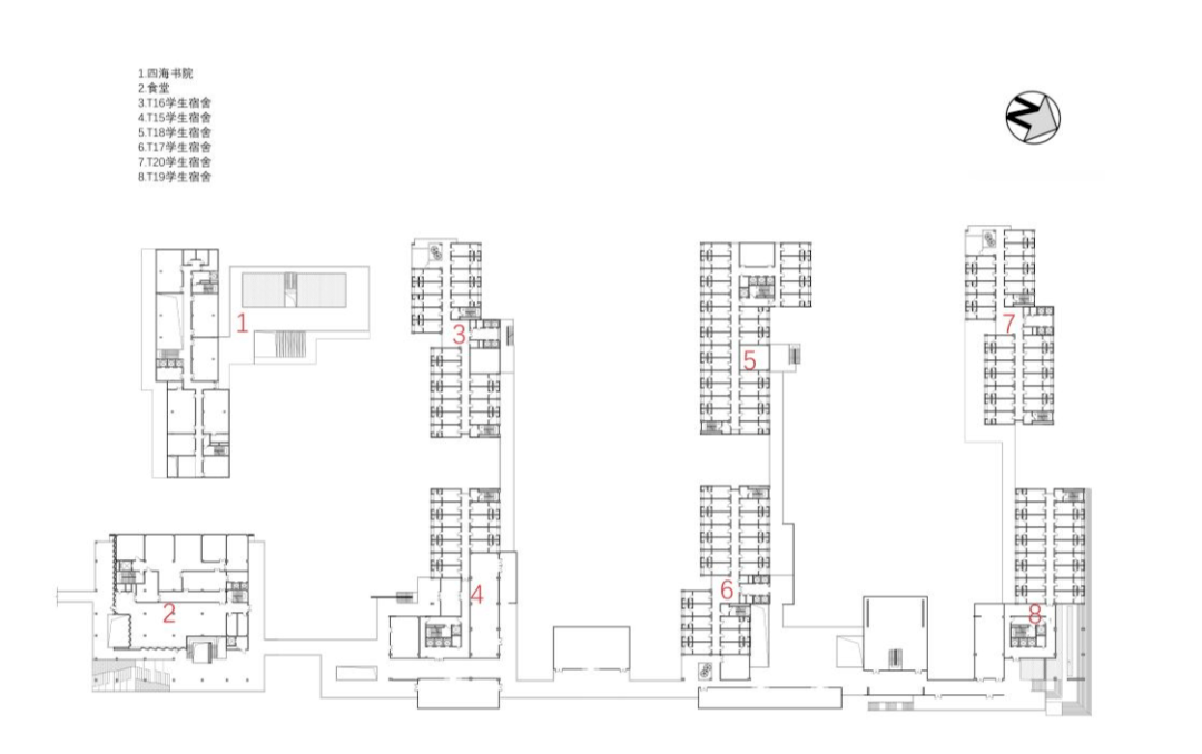
中标方案 | 暨南大学番禺校区二期工程学生宿舍组团,食堂n-4建设项目
图片尺寸1080x678
河北某大学学生宿舍结构施工图cad含建筑图
图片尺寸760x364
图纸 建筑图纸 教育建筑 大学生宿舍设计 某地四层框架结构学生
图片尺寸610x432
studio a 屋顶平面图08studio a 地下平面图08studio a 立面图
图片尺寸1080x763
理工大学学生宿舍设计
图片尺寸841x594
某地区某大学学生宿舍设计cad全套建施图纸
图片尺寸610x438
理工大学学生宿舍设计
图片尺寸841x594
地下平面图 08studio a 立面图 08studio a 剖面图 08studio a
图片尺寸1080x764