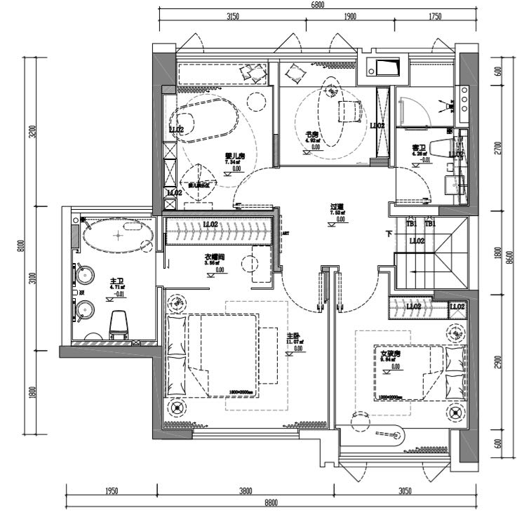
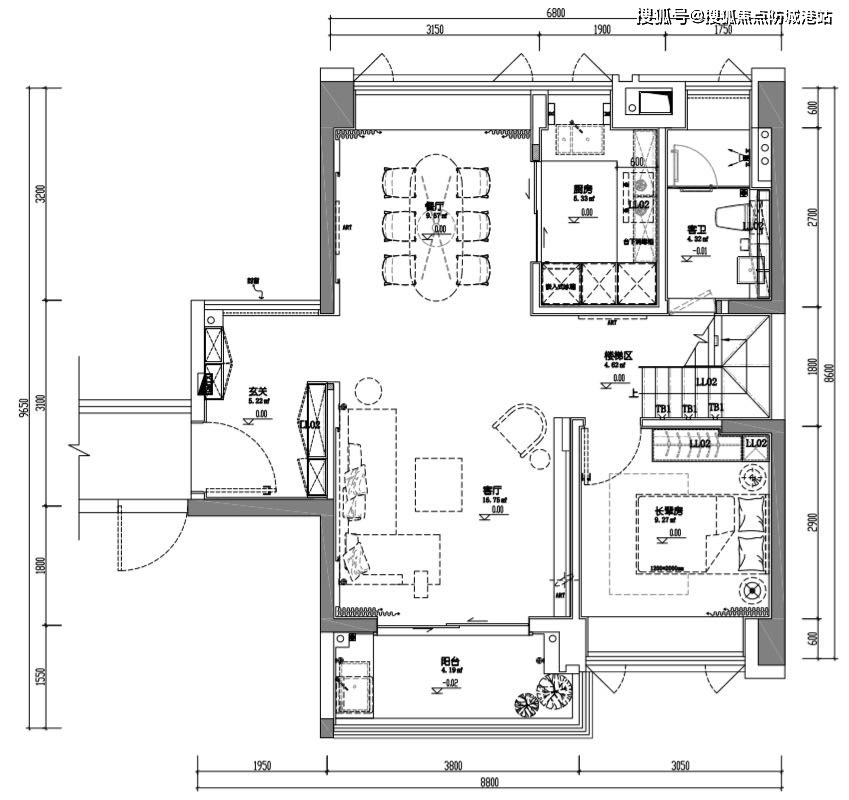
天健天玺户型图

天健天玺 科学城板块 复式南向精装住宅 省级学位 实盘实价
图片尺寸2933x2200
广州天健天玺售楼处电话4000609886转888营销中心
图片尺寸1080x1380
天玺
图片尺寸727x1024
天健天玺售楼处电话广州天健天玺天健天玺楼盘详情房价户型图交通环境
图片尺寸1080x1258
天健天玺售楼处电话→售楼中心首页网站→楼盘百科详情→24小时热线
图片尺寸1080x1253
广州天健天玺售楼处地址户型价格楼盘位置售楼处电话售楼中心
图片尺寸1080x1140
实探天健天玺,报价4.2-4.5万/平!|户型|新盘|别墅_网易订阅
图片尺寸628x855
黄埔 复式住宅 天健天玺 北师大 豪装交楼 配套优越
图片尺寸2933x2200
房小胖地产八卦热聊黄埔长岭居天健天玺
图片尺寸607x921
20号楼05户型-天健城天境户型_天健城天境配套,房价-南宁住朋网
图片尺寸4000x5739
天健天玺天健天玺首页网站丨天健天玺欢迎您丨楼盘详情户型价格地址
图片尺寸849x800
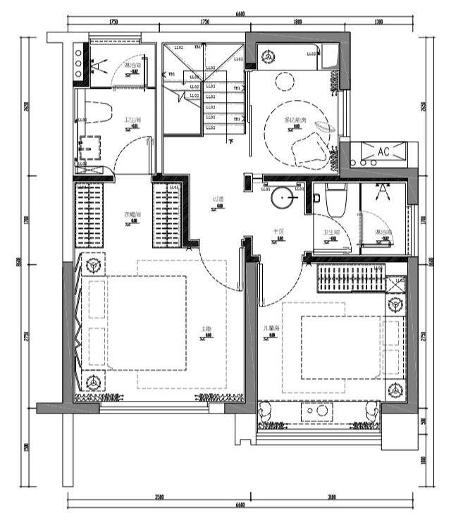
天玺176㎡户型: 3室2厅2卫
图片尺寸463x500
天玺
图片尺寸727x1024
天健天玺 4栋楼王97臻选中高层特批惊玺政策 727570 现场
图片尺寸1080x1440
售楼中心广州黄埔天健天玺售楼处地址丨户型丨最新房源详情官
图片尺寸744x737
南宁骋望天玺3室2厅1卫户型图-南宁楼盘网
图片尺寸2400x1662
深圳天健天骄搜狐焦点天健天骄大家千万别踩坑了进来聊聊个人感受
图片尺寸1080x1600
天健城01/02户型
图片尺寸1233x2132
独家消息广州黄埔天健天玺别墅让人意外难怪这么多人争相购买
图片尺寸657x741
置地城·天玺户型图
图片尺寸950x1310