天正电气CAD

我从一名不会使用cad的菜鸟成长为一名建筑电气初级设计人员,从天正
图片尺寸929x480
天正电气软件cad软件怎么使用具体如何该操作手把手带你入门
图片尺寸528x310
天正电气软件cad软件怎么使用具体如何该操作手把手带你入门
图片尺寸536x319
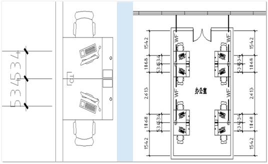
电气图纸绘制之巧用天正电气平面布线功能
图片尺寸910x475
天正电气cad教程之文字篇
图片尺寸639x492
天正电气cad教程之绘图工具篇(内附往期秘籍)
图片尺寸639x539
天正电气空气开关小型断路器tgbk-63系列c型空开 1p 40a
图片尺寸750x1116
5折课程天正电气实战训练营
图片尺寸1366x748
5折课程天正电气实战训练营
图片尺寸1048x650
天正电气cad教程之块的实例技巧讲解
图片尺寸639x467
天正电气软件cad软件怎么使用具体如何该操作手把手带你入门
图片尺寸511x312
精装房中相关天正电气cad绘图技巧_问题
图片尺寸640x541
天正电气cad教程之标注统计篇
图片尺寸639x452
一文搞懂天正电气cad导线工具栏
图片尺寸639x399
天正电气软件cad软件怎么使用具体如何该操作手把手带你入门
图片尺寸536x327
天正电气软件cad软件怎么使用具体如何该操作手把手带你入门
图片尺寸533x322
天正电气软件cad软件怎么使用具体如何该操作手把手带你入门
图片尺寸466x302
一文搞懂天正电气cad导线工具栏
图片尺寸639x399
精装房中相关天正电气cad绘图技巧_问题
图片尺寸640x541
超全cad图例符号画法大全,看过的都收藏了
图片尺寸762x2100