天目里平面

除了大陆首家茑屋书店刚开业的杭州天目里还有哪些看点
图片尺寸600x842
晴雨表 - by art matters 天目里美术馆
图片尺寸776x1050
设计思维独善其身杭州天目里
图片尺寸1080x1288
天目里随想
图片尺寸711x996
伦佐皮亚诺中国首秀八年时间让苹果核变为诗意园区天目里项目
图片尺寸1047x1479
柴米多杭州天目里体验店notaarchitects
图片尺寸7016x4960
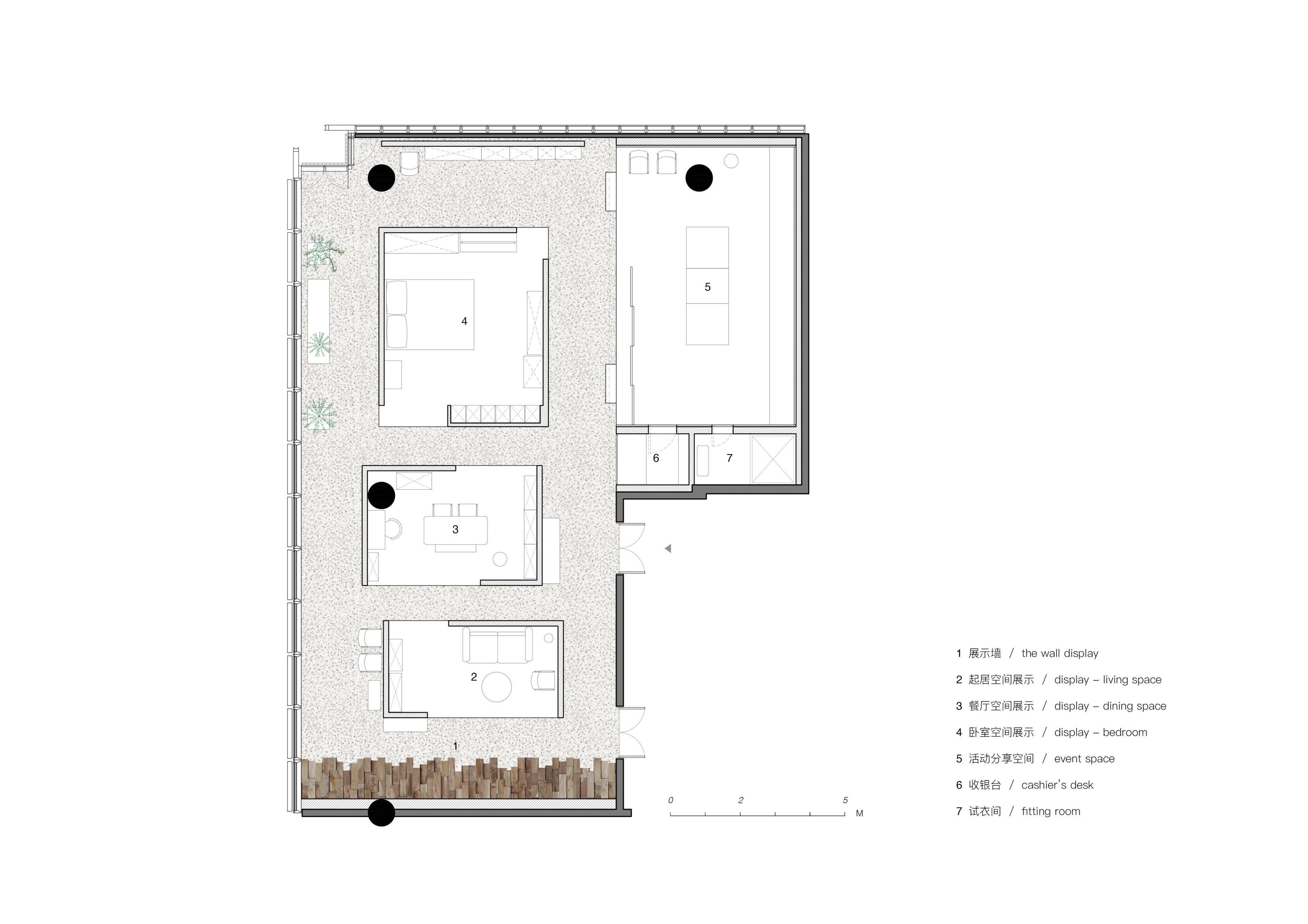
平面图 plan项目信息——项目名称:失物招领杭州天目里生活初步店项目
图片尺寸3840x2713
十二平方设计杭州天目里十八号酒馆
图片尺寸982x589
见筑杭州天目里送你一颗青苹果
图片尺寸1080x1920
杭州秋天的最美集市天目里
图片尺寸1080x1273
天目里专访丨马克卡罗尔奥拉夫德努耶尔自然而温暖的创意园区
图片尺寸640x446
天目里调香展八仙过海各显神通离题
图片尺寸1080x1439
极简为美 | 探秘天目里·江南布衣总部园区
图片尺寸1000x586
中国浙江杭州天目里综合体
图片尺寸500x375
中国浙江杭州天目里综合体
图片尺寸500x375
renzopiano首作天目里不仅是办公室还是你没去过的世外桃源
图片尺寸550x650
真诚生活灵动创想探访天目里半日侧记
图片尺寸800x511
中国浙江杭州天目里综合体
图片尺寸500x375
柴米多杭州天目里体验店02nota建筑设计工作室
图片尺寸960x679
天目里专访丨马克卡罗尔奥拉夫德努耶尔自然而温暖的创意园区
图片尺寸1080x726