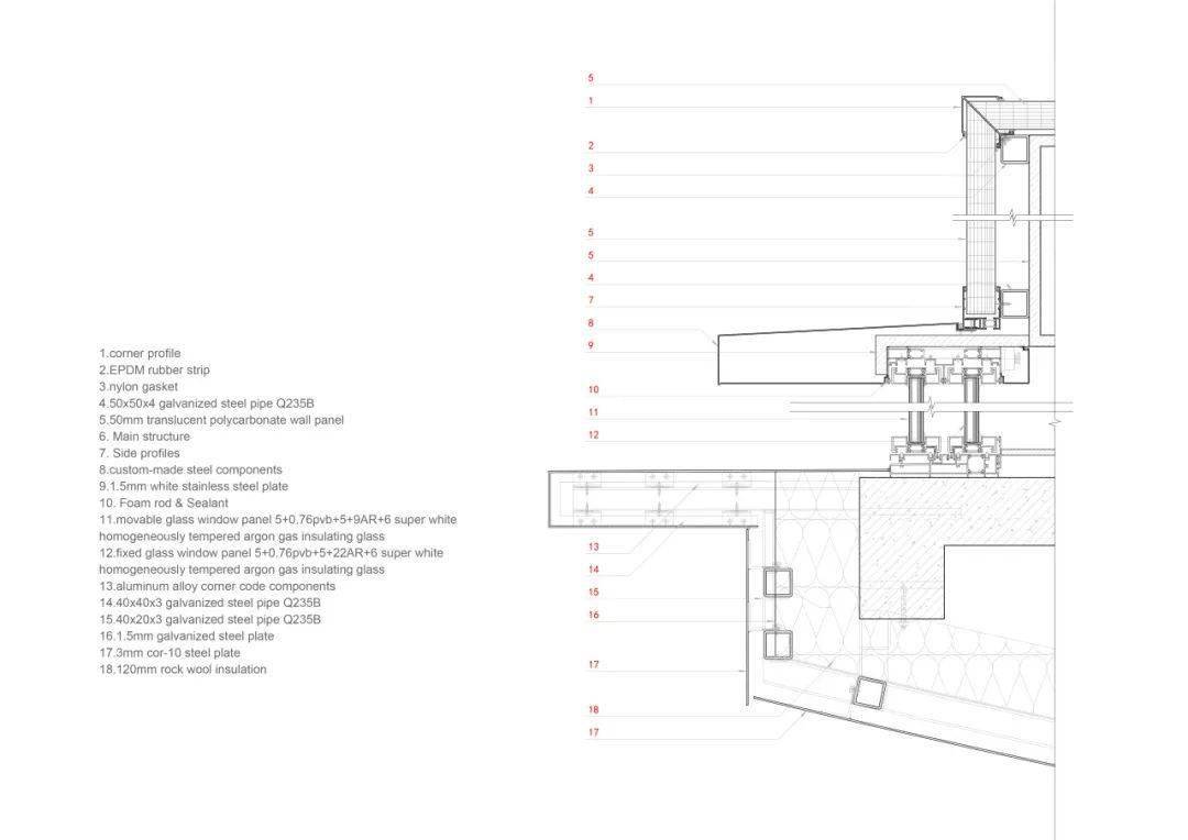
天窗cad

18cj871采光通风消防排烟天窗一图集的通用安装节点分析
图片尺寸660x488
18cj871采光通风消防排烟天窗一图集的通用安装节点分析
图片尺寸660x491
关键词: 天窗节点设计屋面建筑构造室外构件cad图
图片尺寸760x534
电动开窗器智能自动门窗控制天窗链条式开窗机排烟窗推拉窗户24v500mm
图片尺寸750x934
智能电动开窗器自动遥控开关窗器链条式天窗控制消防排烟推拉窗器300
图片尺寸790x1585
分享屋脊通风天窗cad资料下载
图片尺寸760x476
厂房通风天窗施工方案
图片尺寸572x376
凸窗 天窗大型单片玻璃窗 玻璃拉门蓬式窗 百叶窗门头气窗 玻璃屏墙拱
图片尺寸640x480
李坤阳光房遮阳顶帘蜂巢帘电动天窗折叠防晒隔热天棚帘玻璃房顶棚窗帘
图片尺寸790x1141
原来还可以这样画窗还要cad设计师干嘛
图片尺寸465x463
分享屋脊通风天窗cad资料下载
图片尺寸760x536
studio a 优加设计:沐沣悦汤泉酒店_摄影_建筑_直译
图片尺寸1080x764
顶级豪宅就该这样设计大型天窗亮了
图片尺寸960x282
雕琢细腻,情感丰富的生活空间
图片尺寸960x384
webcad私有云cadsdk中实现插入图块的方法
图片尺寸660x494
百年家居欧式风格简约风格新中式风格这么多风格在一套
图片尺寸640x646
老房改造简约设计天窗完美解决采光问题
图片尺寸595x254
花3个小时搭建30㎡别墅,造价只要15w.
图片尺寸960x573
告别沉重软件体验最新轻便cad编辑器的魅力
图片尺寸660x440
【四川莱奥天窗】采光排烟天窗厂家的通风天窗安装知识点分享_位置
图片尺寸949x619