天花立面图

一层隔墙尺寸图,一层地坪布置图,一层天花布置图,一层立面索引图,二层
图片尺寸1431x1054
地材铺设图,天花尺寸图,家居尺寸定位图,一层门厅/走廊立面图,一层
图片尺寸1600x1175
客厅电视立面图
图片尺寸3508x2480
完成卫生间立面图
图片尺寸4365x3087
客厅立面图
图片尺寸1046x852
线路布置图,开关定位图,客厅立面图,卧室立面图,门表详图,天花造型
图片尺寸1358x1018
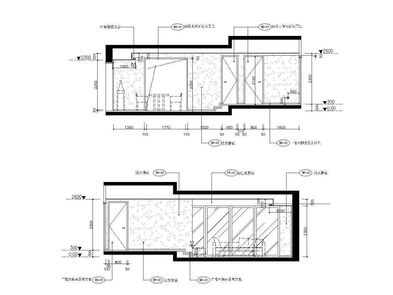
主卧立面图.png
图片尺寸760x450
立面图
图片尺寸820x592
地材铺设图,天花尺寸图,家居尺寸定位图,一层门厅/走廊立面图,一层
图片尺寸1600x1199
中式风格餐厅饭店室内装修设计cad平面天花立面图纸3dmax模型素材
图片尺寸750x750
客厅立面图
图片尺寸1421x1065
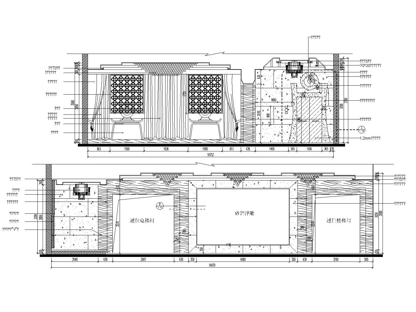
大堂立面图
图片尺寸1443x1082
客厅2立面图
图片尺寸1648x1165
洗手间立面图
图片尺寸801x593
天花造型尺寸图,天花灯具尺寸图,地坪铺设图,开关布置图,立面索引图
图片尺寸1191x778
3层 内容包含:平面图(原始平面图,天花布置图,顶面布置图);立面图; 另
图片尺寸791x640
客厅立面图————门厅————平面布局图————原始建筑图
图片尺寸1080x767
分享主卧卫生间立面资料下载
图片尺寸760x570
客厅立面图
图片尺寸800x600
现代风格 图纸格式:cad2000 包含:平面布置图,天花布置图,立面图,节点
图片尺寸760x516