子母门平面图表示

子母门是啥意思
图片尺寸450x613
王力大师系列高端智能别墅防盗门4级进户门智能门锁一体化盛世子母门
图片尺寸600x1451
子母门尺寸规格比例
图片尺寸1440x2036
要对应鲁班尺上边的大字
宽度高度取个吉利的红字
子母门的还要取母门
图片尺寸1350x1800
庭院别墅铜门 2024新款定制 子母门进户对开 送货上门安装
图片尺寸750x4880
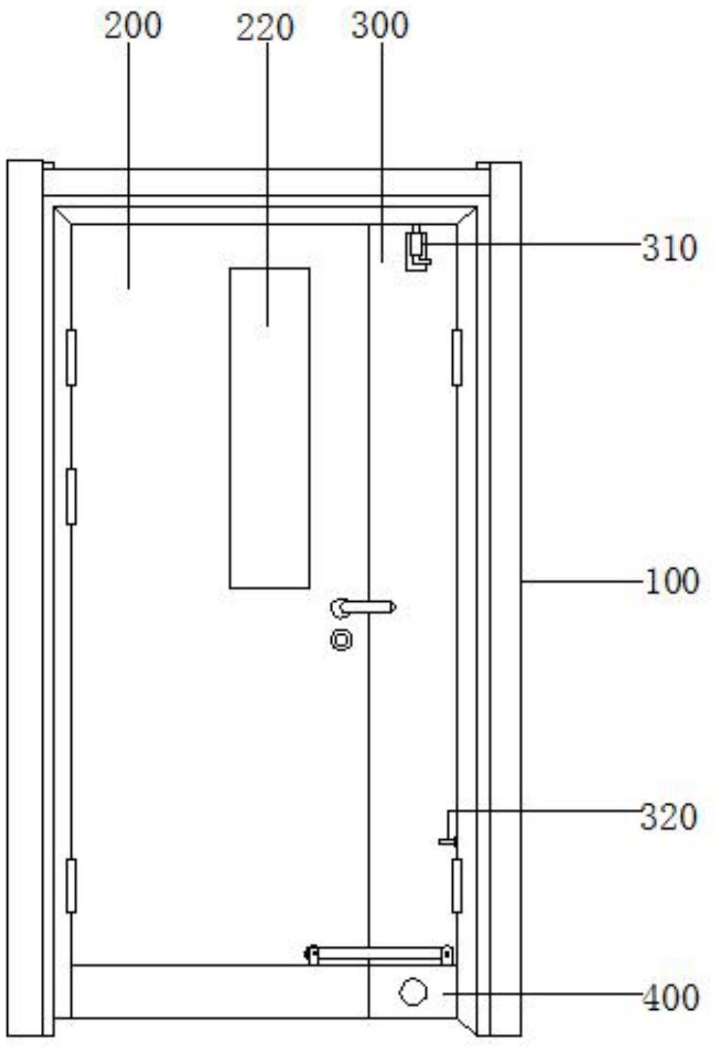
一种安全性强的子母门
图片尺寸1015x1490
医院室净化钢制门无尘车间洁净钢质门子母门实验室单开气密门沾运中字
图片尺寸790x1100
现代防盗门入户门子母门大图块cad图纸
图片尺寸1440x1080
一种新型子母门结构
图片尺寸1478x1725
cd系列洁净室密闭门结构图子母门
图片尺寸910x362
现代防盗门入户门子母门大cad图纸
图片尺寸1440x1080
子母门在cad中图例
图片尺寸400x300
cad多款门动态块子母门推拉门隐形门
图片尺寸1024x768
供应防盗92子母门铝合金防盗门铝合金室内套装门质量保证
图片尺寸750x1200
对于双开门或子母门,其开启方式可能有所不同,具体需根据实际设计情况
图片尺寸1080x1642
图片尺寸690x914
适老化设计十一门的设计选型原则
图片尺寸1280x729
「钢制医用门厂家详解」如何选择医用钢制门及选择步骤?
图片尺寸2361x2151
你家防盗门该换了,现流行防盗子母门,任何位置都能装
图片尺寸640x421
欧式防盗门入户门子母门大门图库古代商业马车图块校园景观设计平面图
图片尺寸400x300