宋汴梁城平面简图

北宋开封城结构图
图片尺寸1080x1437
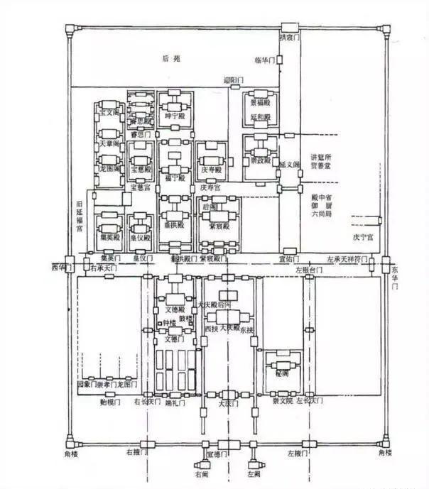
附图2 北宋汴梁宫城主要部分平面示意图
图片尺寸640x932
汴梁城:北宋的繁华象征
图片尺寸1364x1769
🏯宋代的繁华都市
图片尺寸1080x957
开放与封闭的双重设计 📍位置与规模:北宋东京城,也被称为"汴梁"或"
图片尺寸1080x1494
大家都知道,杭州是南宋时期文艺复兴的中心
图片尺寸1833x1280
🏰 北宋开封府地理图鉴 🌍
图片尺寸1080x1176
北宋开封城,世界第一大都市.开封市是首批国家历史文化名城,已
图片尺寸1440x1966
北宋东京汴梁宫城是在唐汴州衙城基础上,仿洛阳宫
图片尺寸1438x1770
汴梁夜晚生活精彩,小商贩遍布大街小巷,宋代城市文明的繁华
图片尺寸1280x892
具备众多突出优势,从而成为北宋都城的必然选择
图片尺寸1186x1182
一张大对开的汴京城市地图,走进宋朝,保你不迷路
图片尺寸1080x1564
不到汴梁,怎知北宋王朝繁华如许?2/27
图片尺寸1080x1620
汴梁开封城
图片尺寸1080x1080
北宋汴梁平面图若论城市面积,《洛阳伽蓝记》里记载北魏洛阳"东西
图片尺寸640x735
诗人一方面赞叹北宋东京城的雄壮,另一方面痛惜固若金汤的都城沦落
图片尺寸1080x1197
北宋东京汴梁平面图
图片尺寸563x645
🏛️北宋宫城布局新变化 📍北宋东京汴梁,宫城的布局发生了革命
图片尺寸1328x1050
东京汴梁,正是这样一座拥集了天下欲念的都城,欲念的杂音与共鸣,犹如
图片尺寸1080x815
宋朝宫殿汴梁宫殿
图片尺寸604x689