宜兴周铁规划

宜兴市周铁镇大拈花湾片区控制性详细规划批前公示
图片尺寸888x1258
周铁约304亩土调完成均位于大拈花湾
图片尺寸660x612
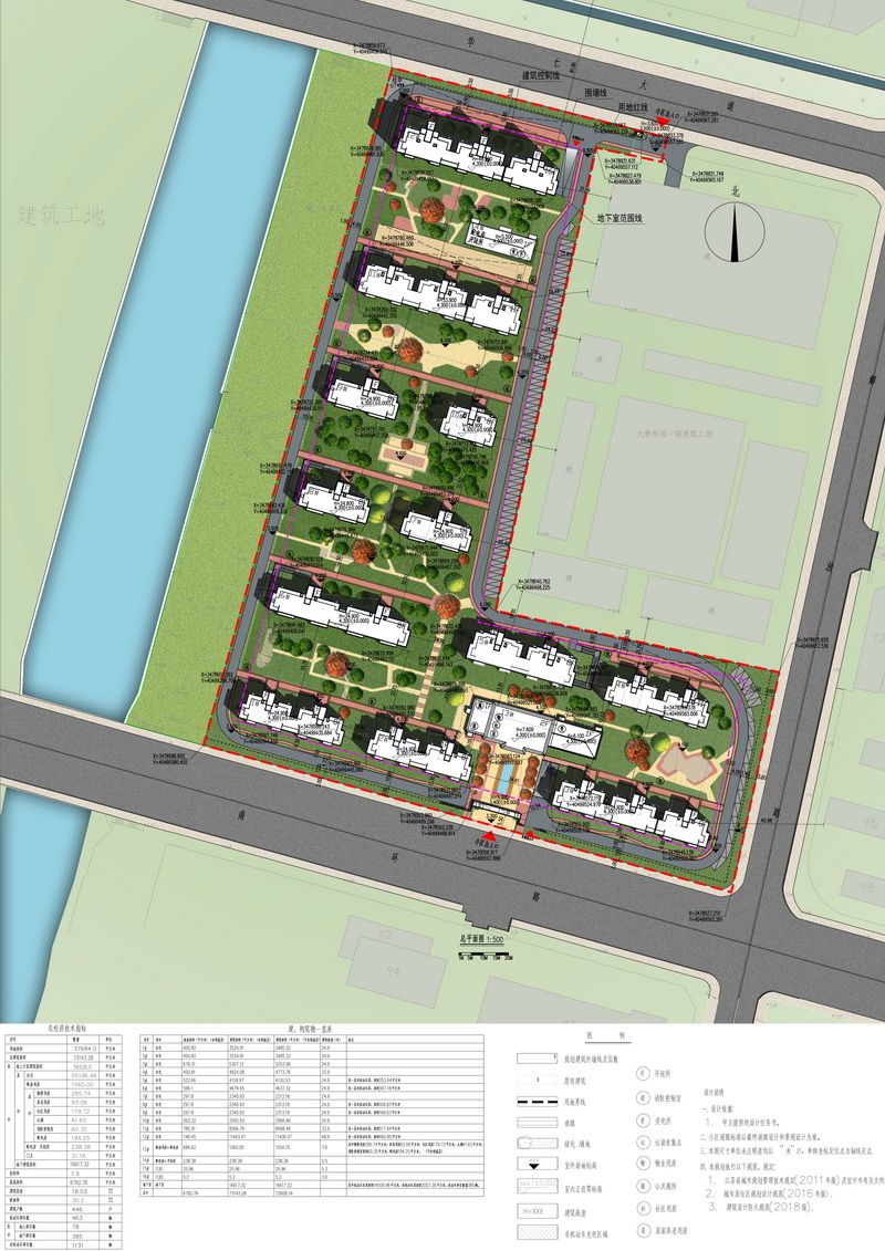
凯旭置业宜兴周铁镇宅地规划方案批前公示
图片尺寸800x1131
凯旭置业宜兴周铁镇宅地规划方案批前公示
图片尺寸640x528
宜兴周铁镇太湖庄园效果图4- 吉屋网
图片尺寸900x600
宜兴周铁镇周前路东侧a地块总平方案批前公示
图片尺寸1445x1000
宜兴周铁镇周前路东侧a地块总平方案批前公示
图片尺寸1411x1000
《宜兴城市综合交通规划(2018-2035)》(草案)公示公告
图片尺寸1000x1416
从宜马快速通道走向看,宜兴市周铁镇竺山湖区域是一个端口.
图片尺寸869x1229
重磅周铁大拈花湾片区控制性详细规划批前公示出炉崛起指日可待
图片尺寸960x696
宜兴地铁s2号线规划图
图片尺寸639x572
灵到则大拈花湾将落户宜兴千年古镇周铁力争今年奠基
图片尺寸1080x391
周铁南环路南侧地块总平批前公示_宜兴零距离房产网
图片尺寸798x598
宜兴市城市总体规划20172035草案公示来说说你的想法
图片尺寸1080x1354
宜兴周铁镇大梦想城-亲子游乐园效果图5- 吉屋网
图片尺寸900x600
宜兴四年微涨300元㎡海伦堡梅开二度竞得周铁地块有何看点
图片尺寸1042x706
经周铁镇东南侧跨越竺山湖,通过马山互通接上规划建设的苏锡常南部
图片尺寸795x657
周铁镇|恒大集团|宜兴市|楼市|房价
图片尺寸641x644
周铁,芳桥,宜兴高铁站到丁蜀,已列入无锡十三五城市建设规划
图片尺寸640x581
宜兴周铁凯旭馨悦府售楼处电话→售楼中心首页网站→楼盘详情→24小时
图片尺寸1080x846