实验楼设计图

实验楼建筑结构设计案例分享.实验
图片尺寸1242x2688
6层教学楼,实验楼毕业设计建筑图.继续分享毕设,同学们,在线
图片尺寸1580x886
图片尺寸1427x1059
五层5430平米高校综合实验楼设计建筑图结构图
图片尺寸1905x974
四层框架结构中学实验楼建筑图毕设
图片尺寸1013x718
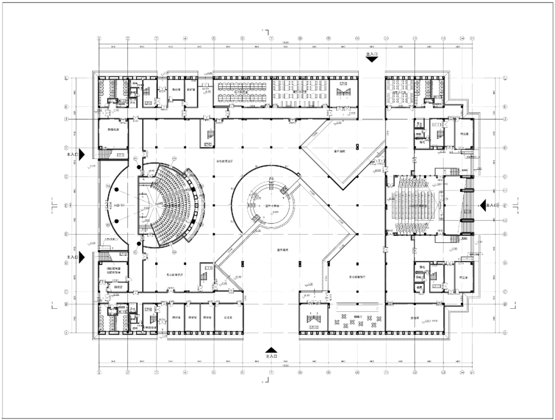
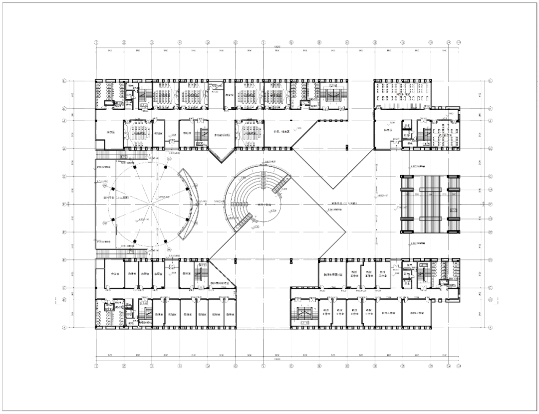
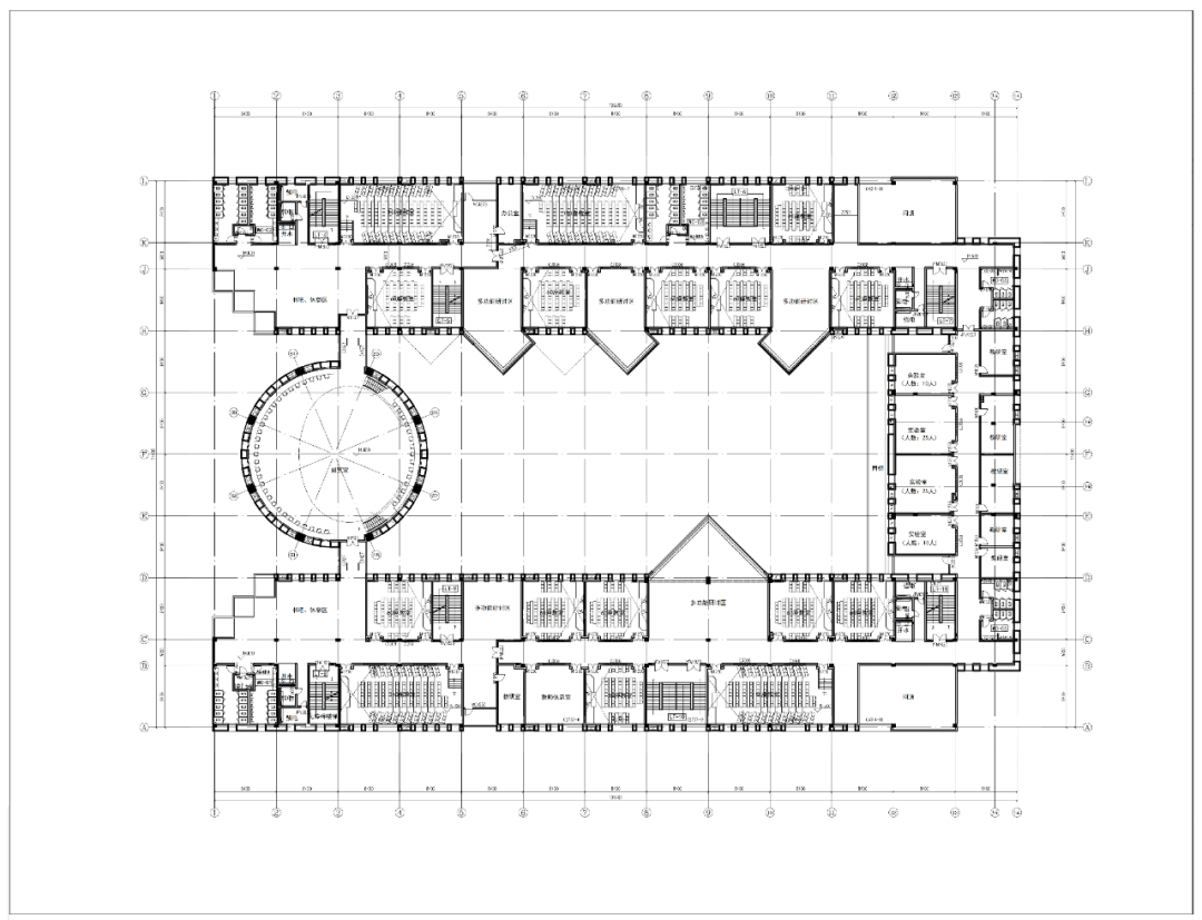
合肥师范学院刘铭传学院教学实验楼 / 华工设计
图片尺寸1080x827
合肥师范学院刘铭传学院教学实验楼的创新设计与实践探索
图片尺寸1080x797
五层5430平米高校综合实验楼设计建筑图结构图
图片尺寸1900x966
五层局部三层技工实验楼结构设计图案例.土木毕设cad图之五层
图片尺寸1147x813
五层5430平米高校综合实验楼设计建筑图结构图
图片尺寸1906x973
某四层4823平米框架结构实验楼毕业设计
图片尺寸1440x1020
西青区扩建天津农学院实验楼项目建设工程设计方案总平面图的公布
图片尺寸4764x3367
合肥师范学院刘铭传学院教学实验楼 / 华工设计
图片尺寸1080x816
图片尺寸3721x2631
实验楼建筑结构设计.实验楼建筑结构设计
图片尺寸1242x2688
化学实验楼布局平面图
图片尺寸920x651
某学校化学实验楼建筑设计cad图纸
图片尺寸1020x1440
合肥师范学院刘铭传学院教学实验楼 / 华工设计
图片尺寸1080x830
生物,化学实验室,动物房等实验楼的通风系统设计原则
图片尺寸1030x533
综合办公楼通风排烟系统设计施工图休闲椅cad
图片尺寸400x300