室内标高

天花标高图
图片尺寸1153x844
层高是指地面到楼面结构标高之间的垂直距离.
图片尺寸420x340
两名实习生抄测室内标高控制线.未来的主力也有当年我的影子.
图片尺寸640x480
太空风格网吧装修顶面标高图图片_室内装修_编号4968724_红动中国
图片尺寸1134x415
如下图:(1).把房屋底层室内主要地面定为相对标高的零点.
图片尺寸443x586
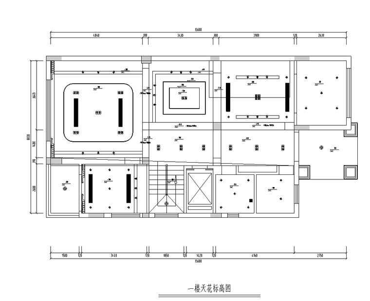
一楼天花标高图.png
图片尺寸760x618
室内标高开间进深轴线抽测表
图片尺寸920x1302
探析室内装修施工中标高控制线的定位方式
图片尺寸2448x3264
如图所示中间的2480标高是从天花量下来?是第一级顶对吧?
图片尺寸612x816
吊顶标高图
图片尺寸660x933
在室内设计图纸中,标高有哪几种方式?
图片尺寸417x442
51同一室内底盒标高差
图片尺寸544x323
请问室内零米标高是不是正负零,请问下列图片是什么意思 -服务新干线
图片尺寸837x640
室内外地坪相对0000标高
图片尺寸968x580
月星家居-吊顶尺寸标高布置图
图片尺寸800x600
如果楼层多可以画楼层表如上图 3,室内装饰标高一般如下图表示
图片尺寸788x763
绘制标高符号定义为属性块并插入到
图片尺寸988x692
请问它这个卫生间的吊顶标高怎么看
图片尺寸1414x902
yky12012-02-12 13:44:14 一层室内地坪标高是-1.38m,室外地坪是-1.
图片尺寸361x398
2,反映地面的相对标高.
图片尺寸4136x2923