室外钢梯平面图

分享室外钢楼梯图纸资料下载
图片尺寸548x559
某地室外消防钢楼梯大样设计施工图纸
图片尺寸610x447
室外消防楼梯钢结构设计
图片尺寸1167x822
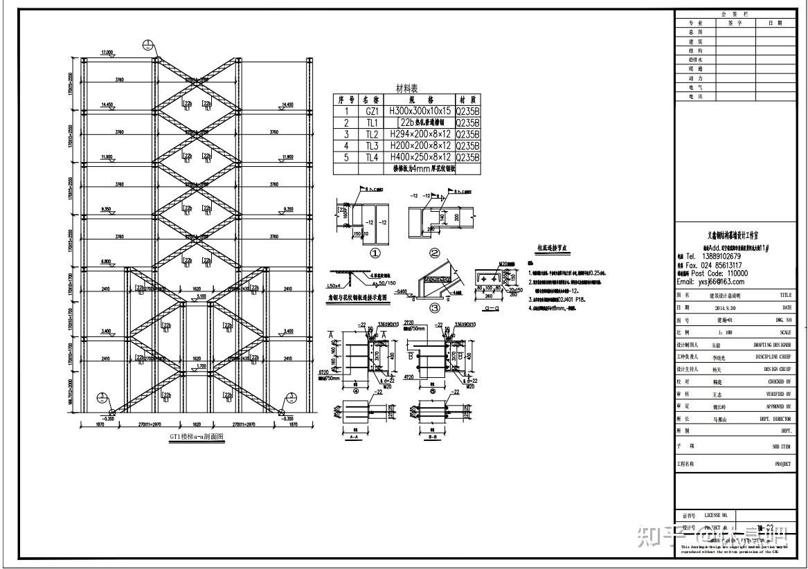
钢梯
图片尺寸1333x803
结构平面图,楼梯结构剖面,缓步台结构剖面,钢梯与混凝土结构拉结节点
图片尺寸560x406
建筑室外钢梯设计
图片尺寸3000x2250
室外直跑钢楼梯结构设计图
图片尺寸818x488
伊瑞格定制铝合金爬梯上楼顶梯子室外爬梯家用铝合金扶手梯登高基坑
图片尺寸750x492
室外钢楼梯
图片尺寸950x590
标准图集钢梯15j401替代02j4010203j401钢梯含2003年局部修改版
图片尺寸1600x1131
钢爬梯
图片尺寸1394x835
某地室外观光电梯钢结构井道工程竣工图纸
图片尺寸608x785
室外钢结构观光电梯建筑和结构图纸
图片尺寸610x432
室外消防钢楼梯钢结构楼梯钢梯消防梯cad图纸
图片尺寸800x800
室外钢结构楼梯 消防钢楼梯-model
图片尺寸1787x2526
钢爬梯
图片尺寸1021x811
蓄水池中钢爬梯
图片尺寸624x658
钢梯踏步
图片尺寸617x498
吉林钢结构设计门厅改造钢结构设计项目
图片尺寸1213x777
某厂房室外钢爬梯节点详图
图片尺寸402x560