小酒馆平面布置图

略chill~的小酒馆布局方案.日咖夜酒的小酒场~#空间规划
图片尺寸1986x1440
酒馆平面布局图.酒馆方位图#地理位置图 #小酒馆儿 #布局图
图片尺寸1080x1464
小酒馆装修细节大揭秘🍷🎨
图片尺寸1392x1728
小酒馆西餐吧
图片尺寸1440x1964
酒吧设计
图片尺寸1280x1024
11-24 10:29 全部评论 大家都在搜: 钱耿耿大小姐
图片尺寸960x1262
空间设计 朋克风小酒馆
图片尺寸1440x1732
想象一下,在一个100平方米的小天地里,你能够感受到大自然的怀抱
图片尺寸1528x1050
小餐馆平面图,加工流程图
图片尺寸1860x2631
2006平宴会厅设计.#布局图平面图 #宴会厅设计 #宴会厅
图片尺寸1080x1464
双斌|印巷小酒馆
图片尺寸4000x2369
图片尺寸1403x1440
跳海小酒馆:一个融合艺术与人文的独特社交空间
图片尺寸1001x1670
100平米日咖夜酒小酒馆平面布置图cad图纸
图片尺寸1611x1080
该涨白酒知识#空间设计#平面布置图#设计#会所设计#商业空间设计
图片尺寸1200x1600
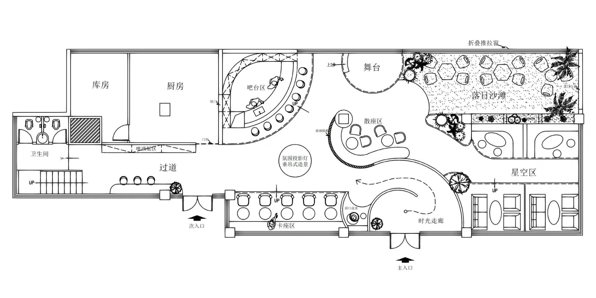
小酒馆平面方案设计▏酒吧装修设计▏露营风吧
图片尺寸1920x960
美式风格其它装修设计效果图
图片尺寸1780x2434
设计方案融合海鲜与酒馆两大元素,在平面布局上满足多元化的用餐需求
图片尺寸900x637
🍷90平美式小酒馆,年轻人的灵魂栖息地🎉
图片尺寸1920x1326
平面布置图plan design空间视觉上,业主想要给消费者传达一种端庄成熟
图片尺寸2930x2415