屋顶检修口平面图

请问这个闷顶检修口就是常说的上人孔吗尺寸怎么看呢蓝色的小方口是上
图片尺寸541x345![[分享]屋面检修孔图集资料免费下载](https://i.ecywang.com/upload/1/img2.baidu.com/it/u=3378673188,1614235633&fm=253&fmt=auto&app=138&f=JPEG?w=796&h=500)
[分享]屋面检修孔图集资料免费下载
图片尺寸1027x645
某屋面检修口cad设计图
图片尺寸610x861
这种屋面检修口应该怎样计价?
图片尺寸1720x865
这个屋面检修孔怎么画?
图片尺寸924x684
屋面检修孔盖为20厚木板外包1厚铝合金板,怎么套定额?
图片尺寸455x315
屋面检修孔15zj201117怎么套清单定额
图片尺寸739x504
成品天花检修口cad节点图 深化设计 施工图
图片尺寸823x611
某天花检查口cad节点完整施工设计图
图片尺寸610x861
请问屋面检修孔和屋面透气帽应该怎样在图纸中找到代表什么符号
图片尺寸1170x774
请问屋面检修孔和屋面透气帽应该怎样在图纸中找到代表什么符号
图片尺寸721x563
斜屋面有个检修口,洞口的加强筋该怎画?么用单构件还是绘图?
图片尺寸910x504
屋面检修口大样图
图片尺寸299x228
检修口平面图
图片尺寸718x511
13-1-49 顶棚检修口(上人)平面图
图片尺寸1080x669
请问下面这个屋顶上的检修孔怎么用什么画呀
图片尺寸2312x1736
厂家直销中央空调吊顶检修口 可开式铝合金检修口
图片尺寸663x662
出屋面检修口_屋顶检修口尺寸_屋面检修口盖板做法_吊顶检修口厂家
图片尺寸612x332
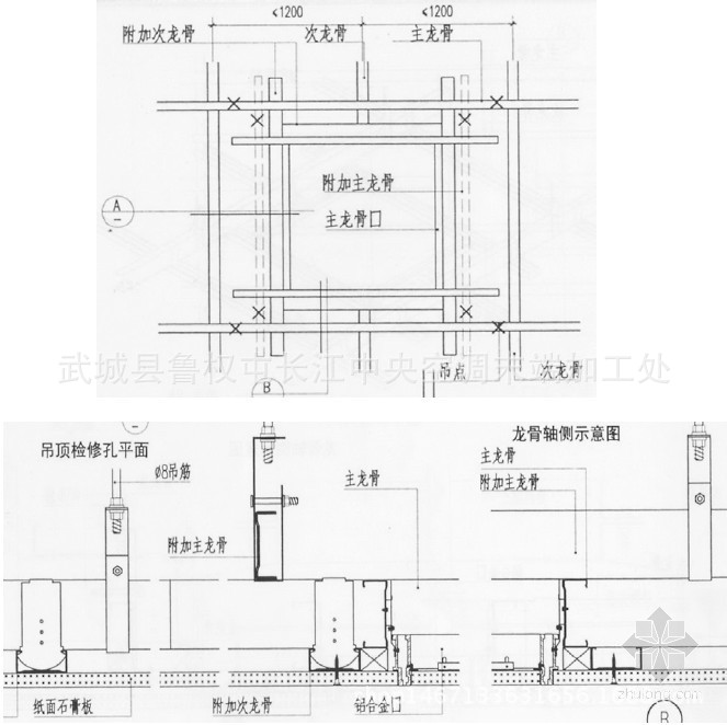
天花吊顶检修口节点大样图该如何画
图片尺寸1080x1440
屋面检修口
图片尺寸920x599