工地冲洗台图纸

施工现场洗车台
图片尺寸1975x1130
建筑工地洗车机全自动洗轮机工地洗车台工程洗轮机工地洗车机
图片尺寸750x1068
wh-100t-工地冲洗平台
图片尺寸1584x1131
cm*3700cm*1100cm 使用车辆及载重量 t 100t以下各类工程车 冲洗方式
图片尺寸1024x725
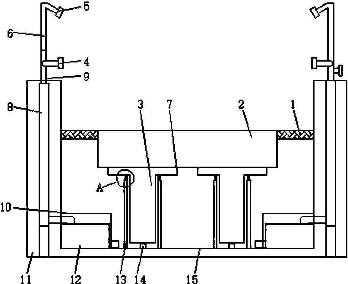
cn207955590u_一种钢结构搅拌车冲洗台有效
图片尺寸1154x941
工地洗车池尺寸图纸cad - 2020年最新商品信息聚合专区 - 百度爱采购
图片尺寸1080x736
工地洗车台做法详图
图片尺寸500x708
厦门工地洗轮机自动洗车平台
图片尺寸609x522
全自动冲洗平台 洗车台设备 > mr-150环保工程洗车台设备 我们通过
图片尺寸700x337
技术总工就产业基地洗车台振动带做法详细做法予以详细交底!
图片尺寸2000x2667
每个建筑工地必备!一套洗车池施工做法及使用管理措施
图片尺寸640x709
工地洗车池图集 - 2020年最新商品信息聚合专区 - 百度爱采购
图片尺寸1033x825
厂家直供河南许昌工地洗轮机洗车平台
图片尺寸1200x849
洗车台图纸
图片尺寸1311x927
循环冲洗台的制作方法
图片尺寸868x1000
建筑工地洗车槽冲洗区临时洗车台洗车池自动冲洗设施平剖面cad图
图片尺寸800x800
生产活动,是各类建筑物的建造过程,也可以说是把设计图纸上的各种线条
图片尺寸446x295
工地洗车槽施工图下载【id:399532666】
图片尺寸1600x835
工地洗车槽附施工图
图片尺寸920x1302
6米×8米洗车台详图
图片尺寸560x420