市政图纸

某市市政工程道路设计图(二)-路桥工程图纸-筑龙路桥市政论坛
图片尺寸912x685
通知公告公示图纸:市政材料供应站煤改气项目总平面图(本公示内容及
图片尺寸4678x3309
江苏某市政道路交通工程施工图24张图纸
图片尺寸1440x1020
伟亚护栏生产厂家 三横杆道路护栏 交通护栏 市政道路护栏
图片尺寸1280x906
某城市环路市政道路给排水施工图纸
图片尺寸800x567
城市环路市政工程给排水设计施工图纸
图片尺寸567x423
2分5450上传于:2016-09-19 15:21:32来自:给排水/市政小区给排水图
图片尺寸610x861
某市政道路设计图-路桥工程图纸-筑龙路桥市政论坛
图片尺寸1037x718
某城市环路市政道路给排水施工图纸
图片尺寸800x567
安徽省某新区市政工程竣工图-路桥工程图纸-筑龙路桥市政论坛
图片尺寸935x687
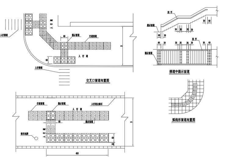
城市棚户区配套市政道路全套图纸135p 2019
图片尺寸760x515
某地市政工程城市道路设计cad图纸
图片尺寸1440x1020
市政道路排水管道施工图(pdf格式)免费下载 - 公路图纸 - 土木工程网
图片尺寸640x480
某市政给水管道工程图纸平面1
图片尺寸1287x1113
某城市环路市政道路给排水施工图纸
图片尺寸800x567
市政排水工程顶管井设计施工图(共27张图纸)
图片尺寸1440x1020
某市政工程桥梁设计图-路桥工程图纸-筑龙路桥市政论坛
图片尺寸1068x683
某城市环路市政道路给排水施工图纸
图片尺寸800x567
无锡市某市政工程施工道路图纸
图片尺寸760x543
双向八车道城市主干路综合整治全套图纸-路桥工程图纸-筑龙路桥市政
图片尺寸760x570