幕墙开启扇 图纸

一种用于幕墙工程的开启扇的制作方法
图片尺寸915x1000
请问一下大家,这幕墙开启扇如图第二行文字{不锈钢滑撑}红色的图,是
图片尺寸720x1280
某明框玻璃幕墙节点构造详图(一)(开启扇水平图)
图片尺寸760x519
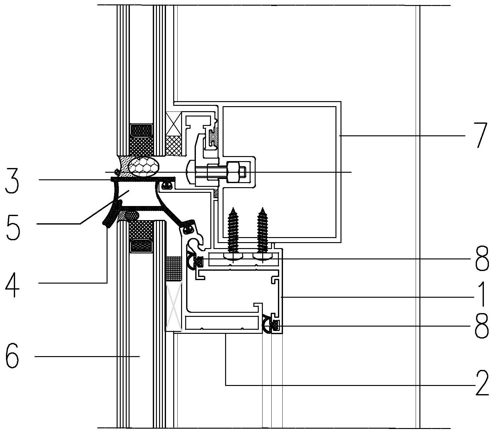
cn201785915u_幕墙开启扇有效
图片尺寸1699x1845
竖明横隐幕墙开启扇横剖节点图
图片尺寸643x339
装饰面,为了使建筑内部通风透气,幕墙开启扇成为幕墙结构中必不可少的
图片尺寸426x444
闽发幕墙开启扇断面 curtain wall open fan-light
图片尺寸550x768
幕墙开启扇的制作方法
图片尺寸877x1000
隐藏开启窗幕墙系统的制造方法与工艺
图片尺寸590x1000
cn111877957a_一种节能防水的玻璃幕墙开启窗在审
图片尺寸1568x1382
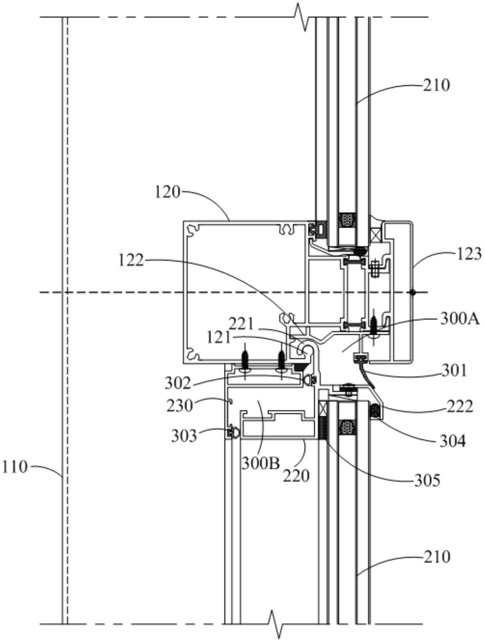
本实用新型涉及单元式幕墙技术领域,具体涉及一种安全防脱落型开启扇
图片尺寸1893x1690
钩挂式幕墙开启扇设计
图片尺寸480x522
一种幕墙开启扇用挂钩及应用该挂钩的钩挂式幕墙分体开启扇-爱企查
图片尺寸934x928
cn202913885u_一种隐框幕墙开启扇失效
图片尺寸1000x885
一种幕墙开启窗扇安装结构的制作方法
图片尺寸998x1000
老师敲黑板幕墙安全要从开启扇设计说起
图片尺寸540x417
cn206487316u_一种内倾式幕墙专用开启窗结构有效
图片尺寸954x1000
适用于框架式幕墙或单元式幕墙,该开启扇防坠及快速检测结构包括基座
图片尺寸1572x2080
本实用新型涉及一种隐藏式开启扇设计的单元体幕墙系统
图片尺寸1000x962
铝幕墙与玻璃幕墙开启扇竖向连接
图片尺寸1311x927