平面分割图

60㎡一室一厅老公房 衣服分割收纳更强
图片尺寸1080x1728
平面构成的骨骼,分割与比例
图片尺寸634x594
黄色线为区域分割线.蓝色为动线
图片尺寸720x960
分割前总表面积的一半加分割后分割面的面积.
图片尺寸811x489
推荐 69 交流 69 平面布局 69 正文内容 无分区思维的布局 这一
图片尺寸1835x1779
前面呢,我们学习的都是平面图形,平面图形都可以平均分,那么立体图形
图片尺寸273x251
客厅餐厅在一个大的区域, 怎样通过吊顶分割,过道还需要吊顶分割吗?
图片尺寸2268x2035
四室两厅两卫房子设计平面图
图片尺寸1920x1493
圆之奥义丨黄金比例分割图 唯美大衍螺旋线
图片尺寸640x640
图中长方形被分割成6个正方形,中央小正方形的面积是1平方厘米,求原长
图片尺寸499x419
归纳户型中出现的过多小空间分割.
图片尺寸640x512
在长为10米,宽8米的长方形空地,在长方形空地上分割成三个一样的长
图片尺寸1218x610
02平面布置图.jpg
图片尺寸4059x4123
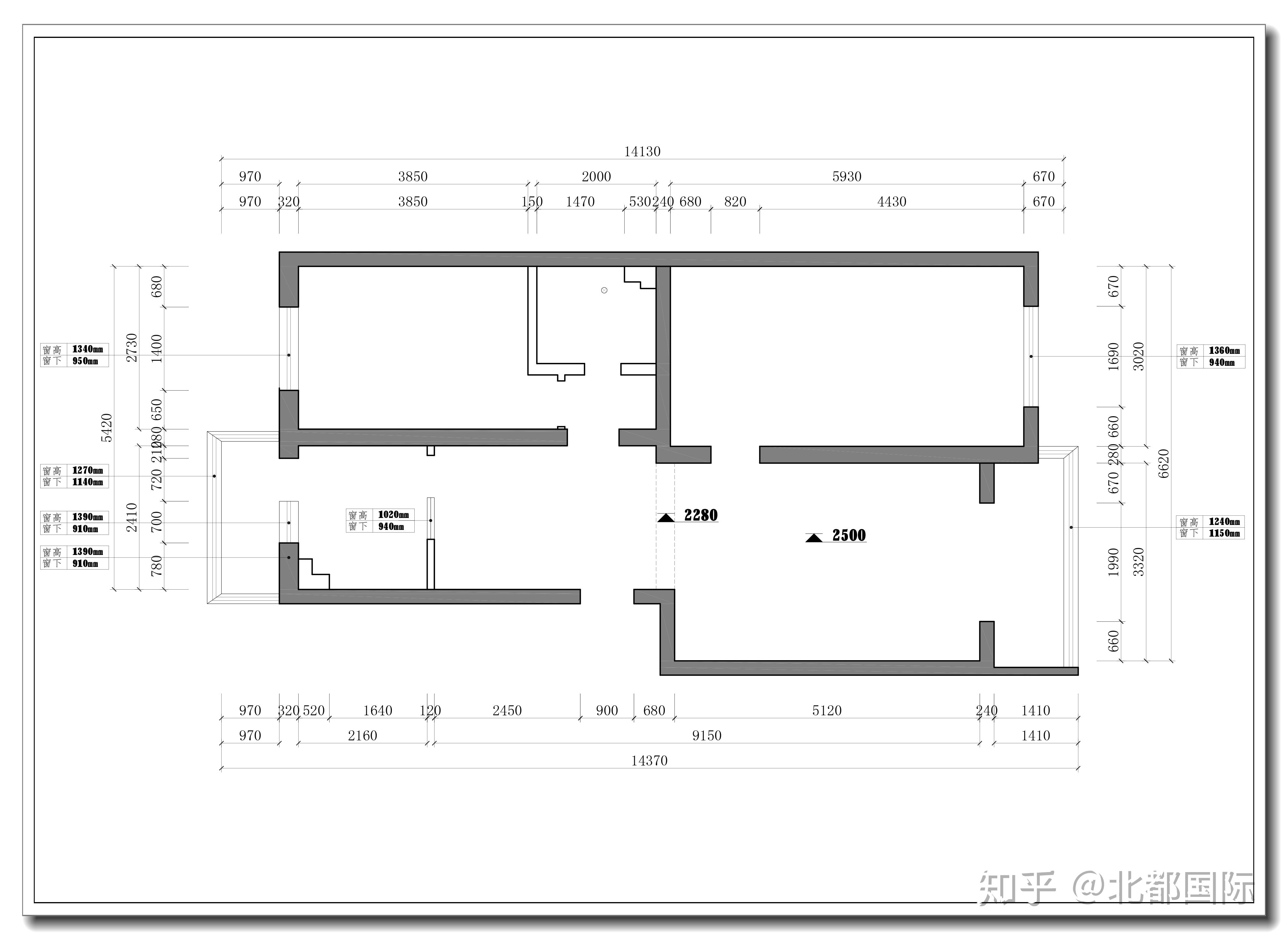
户型图和平面布置图客户要求:二手房整体拆除重新装修,客户是在日本
图片尺寸4417x3225
现将这块空地按下列要求分成四块:①分割后的整个图形必须是轴对称
图片尺寸769x315
楼房室内格局分布平面图
图片尺寸1224x1242
办公楼一层平面布置图
图片尺寸2339x1653
67平米的一室一厅的高层房子,帮忙设计一下,把一室分割成为两室.谢谢!
图片尺寸534x720
此项为房屋平面布局图
图片尺寸640x457
450㎡大平层平面规划|功能区重新分割|套间
图片尺寸1080x711