平面图家具画法及尺寸

常用人体工学家具尺寸
图片尺寸920x690
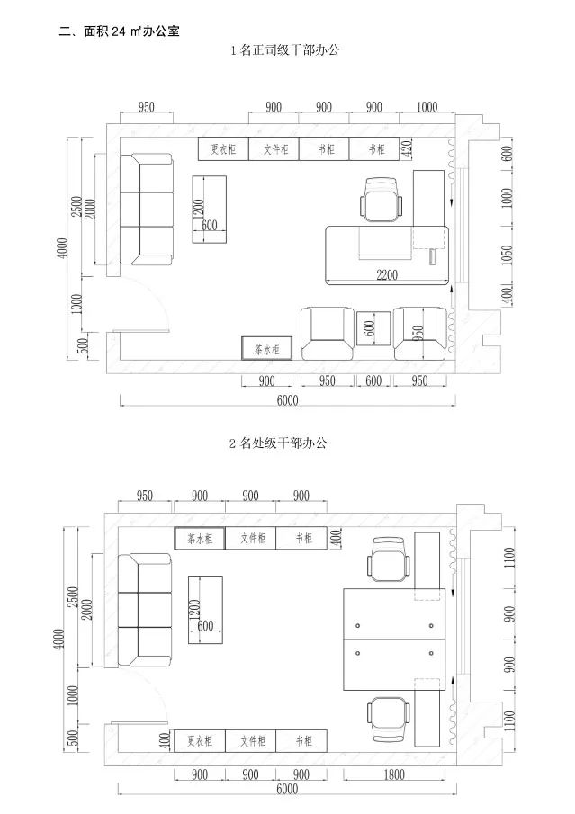
中央行政事业单位通用办公家具规格和性能指南
图片尺寸639x905
全屋定制版式家具cad,效果图代画.赚点零花钱 代画全屋板式 - 抖音
图片尺寸1166x736
民用建筑常用的家具尺寸示例图
图片尺寸650x912
捷翔实木沙发组合客厅现代简约小户型中式红椿木香樟木农村经济型家具
图片尺寸750x648
室内设计中的家具尺寸(图例)及材料
图片尺寸1513x876
现代家具组合尺寸
图片尺寸731x475
装修时,如何选择家具的尺寸?不要花钱买教训
图片尺寸640x437
3月底离开深圳整屋家具,家电大甩卖!
图片尺寸1080x1080
做室内设计必备家居尺寸 人体工程学 家具尺寸
图片尺寸1554x2104
cad室内转角沙发如何绘制尺寸?
图片尺寸3508x2480
两房平面家具示意图
图片尺寸1600x1131
买大买小不如买的合适,这份家居尺寸攻略够详细了,建议拿去收藏
图片尺寸1332x732
费丽斯家具意式现代极简客厅沙发a061
图片尺寸800x600
客厅大小以及沙发家具各项尺寸多少才算合理
图片尺寸820x751
室内设计中的家具尺寸(图例)及材料
图片尺寸1553x1265
11张手绘漫画图搞定装修家具尺寸
图片尺寸1200x800
定制类家具常规尺寸榻榻米书桌
图片尺寸1080x808
经理办公桌-经理办公桌样式办公桌-老板桌-经理桌-老板台-班台-家具
图片尺寸600x381
家具尺寸大全 别让不合适的家具毁了你的家
图片尺寸662x438