平面图门窗

窗户设计图穆先生已画好,后续工作一一落实安排!#系统门窗 #
图片尺寸1440x1920
🚪平开窗设计指南:美观与实用兼备
图片尺寸1615x2010
80普铝1.8壁厚平开窗.天发铝业!新国标1.8壁厚80普铝
图片尺寸1114x1534
门窗行业可是装修领域里的"踩坑第一名",提前做好功课非常重要哦!
图片尺寸1080x1050
整屋门窗解决方案最大解决客户的烦恼
图片尺寸1080x1439
图片尺寸1074x1440
阳台封窗开扇位置选择
图片尺寸1080x1409
帝都买房,窗户咋选?
图片尺寸942x930
天气炎热,大家多注意身体!注意防暑降温.#门
图片尺寸1080x2388
8款窗户装修设计,找到适合你家的窗户!家里窗户不知道如何选择
图片尺寸1080x1402
阳台封包系统静音门窗方案#封阳台封窗 #落地窗 #系统门窗
图片尺寸1080x2400
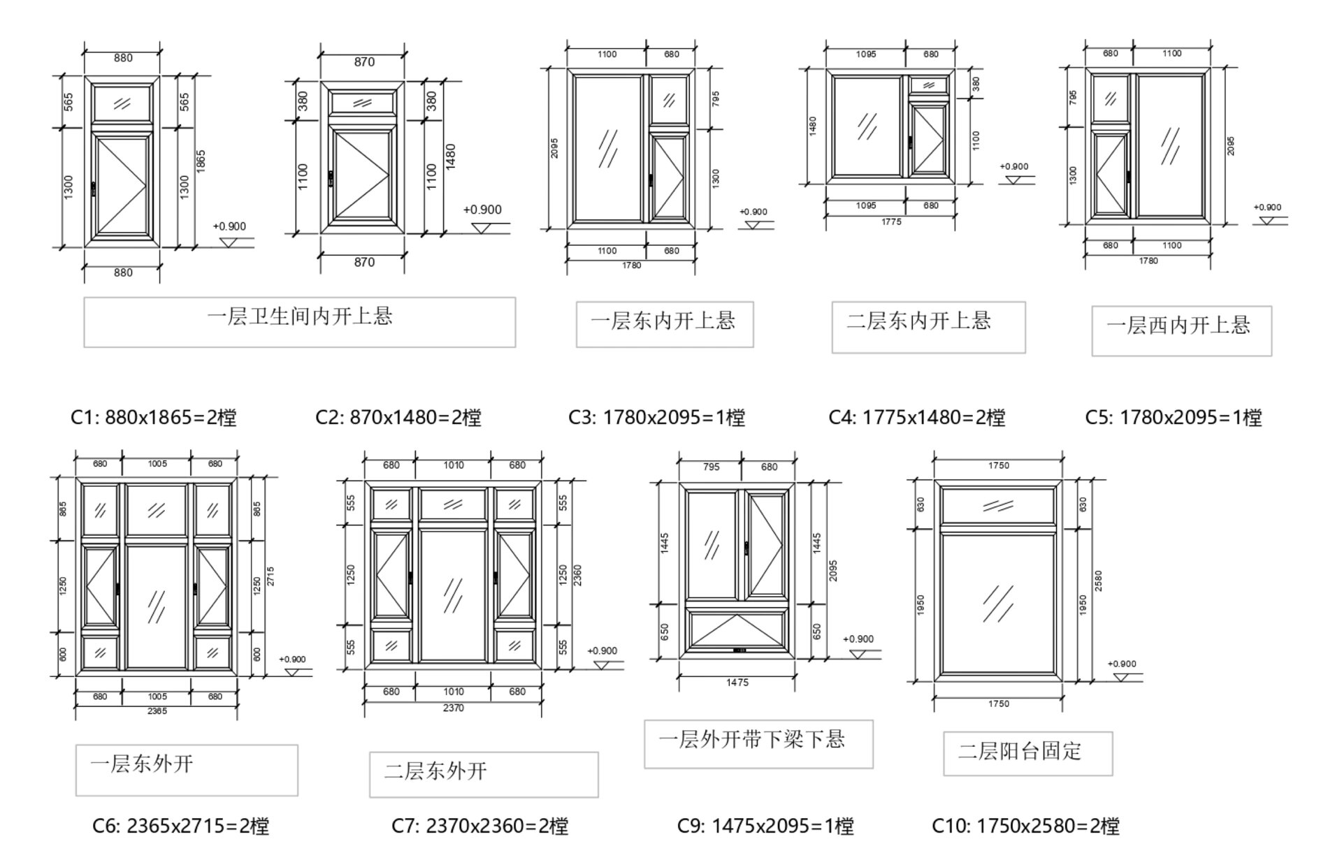
铝合金门窗施工图深化,平开窗推拉窗固定窗平开门推拉门断桥铝合
图片尺寸1374x1096
pc50普通平开窗
图片尺寸1654x2244
门窗 门窗软件,需要的老板欢迎咨询!
图片尺寸1440x1440
求大神解释一下,门联窗怎么计算?
图片尺寸1004x681
普通门窗
图片尺寸1200x1623
六款断桥铝门窗封窗方案.常见得6种封阳台布局图,可以选择美观
图片尺寸1440x2036
65系列平开窗施工图深化设计,断桥铝合金门窗工程下料加工图
图片尺寸852x696
建筑图的门窗示意图
图片尺寸2690x1900
人见人夸的极简风农村自建房
图片尺寸1920x1241