庭院雨水排水设计图

雨水花园
图片尺寸926x647
我单位首例微动力庭院污水项目通过验收
图片尺寸1119x791
【美华建筑设计】雨水花园到底应该做多大?设计师懵了.
图片尺寸1080x500
经典案例
图片尺寸1084x868
请问图示中的馆内庭院中雨水管都需要计算挖方吗
图片尺寸681x864
如何建造一个雨水花园
图片尺寸930x453
新闻资讯庭院系统_武汉别墅庭院设计-别墅景观设计-私家花园设计,施工
图片尺寸535x280
雨水花园
图片尺寸800x516
雨水花园
图片尺寸1000x696![[湖南]欧式风-高端别墅别院景观施工图设计-庭院景观-筑龙园林景观](https://i.ecywang.com/upload/1/img0.baidu.com/it/u=3303006905,1703802337&fm=253&fmt=auto&app=138&f=PNG?w=702&h=500)
[湖南]欧式风-高端别墅别院景观施工图设计-庭院景观-筑龙园林景观
图片尺寸760x541![[湖南]私家别墅花园园林景观施工图 视频-庭院景观-筑龙园林景观论坛](https://i.ecywang.com/upload/1/img1.baidu.com/it/u=4007883910,3046784087&fm=253&fmt=auto&app=138&f=PNG?w=639&h=500)
[湖南]私家别墅花园园林景观施工图 视频-庭院景观-筑龙园林景观论坛
图片尺寸760x595
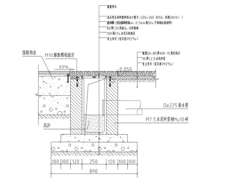
园林给排水标准构造图集|雨水口详图 b1型
图片尺寸760x601
如何搭设内庭院外架在有排水沟和檐沟底板影响的时
图片尺寸1014x642
装修下沉式庭院如何排水
图片尺寸640x382
雨水花园
图片尺寸658x570
某工程雨污水井雨水口设计cad施工详图甲级院设计20张图
图片尺寸1440x1020
雨水管渠系统设计
图片尺寸1080x617
园林给排水标准构造图集|三合一雨水口详图
图片尺寸760x656
园林给排水标准构造图集|雨水立管检修口
图片尺寸760x568
庭院绿化cad图纸- 景观规划设计图图纸 - 沐风网
图片尺寸727x566