廊架平面贴图

某现代木条镂空廊架设计su模型
图片尺寸700x491
亭子廊架木平台
图片尺寸1024x577
廊架
图片尺寸736x552
带座椅的廊架
图片尺寸1600x1310
某简约木质廊架su模型
图片尺寸700x580
户外防腐木葡萄架 户外长廊室外别墅庭院花架子 实木阳台爬藤廊架
图片尺寸790x858![[分享]景观廊架施工方案资料免费下载](https://i.ecywang.com/upload/1/img2.baidu.com/it/u=2906494599,4293167320&fm=253&fmt=auto&app=138&f=JPEG?w=715&h=500)
[分享]景观廊架施工方案资料免费下载
图片尺寸1349x944
新中式廊架cad图纸
图片尺寸285x896
休闲廊架施工详图
图片尺寸1052x726
小品平面图素材--木质平台廊架车人
图片尺寸1024x682
特色单臂廊架设计详图——泛亚景观
图片尺寸1067x748
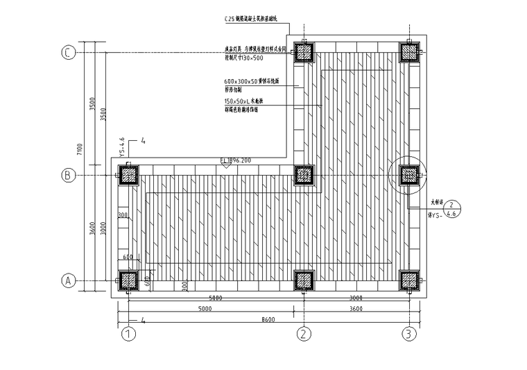
廊架平面图
图片尺寸401x287
内容简介 特色廊架施工详图,包括顶视图,铺装平面图,立面图,剖面图
图片尺寸560x467
某现代风格景观廊架cad施工图
图片尺寸700x493
廊架设计参考图
图片尺寸1346x940
内容简介: l形钢筋混凝土廊架详图设计 目录:平面图,立面图,剖面图,大
图片尺寸760x533
廊架施工图
图片尺寸559x409
公园内廊架景观设计施工cad图纸
图片尺寸800x623
木制圆形廊架设计su模型
图片尺寸700x414
欧式弧形休闲廊架
图片尺寸1000x830