建筑制图识图读图

建筑识图
图片尺寸569x800
房屋建筑施工图,施工识图读图,结构图识图读图 它一般包括:结构设计
图片尺寸1140x687
建筑制图与识图试题(含答案)
图片尺寸629x874
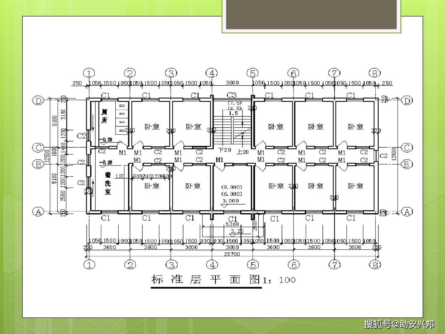
建筑识图
图片尺寸500x500
建筑施工图读图范例报告图纸
图片尺寸1153x1630
建筑施工图读图练习
图片尺寸1080x810
建筑制图与识图试题.docx 8页
图片尺寸792x1119
房屋建筑制图与识图
图片尺寸415x600
图立面图剖面图截面图 给排水结构暖通空调电气 施工图 图纸 制图识读
图片尺寸1280x1280
科技 建筑制图及识图 (三
图片尺寸1080x810
建筑制图与识图第7章结构施工图
图片尺寸800x600
建筑识图制图.ppt
图片尺寸1152x864
建筑工程制图与识图复习资料.doc 4页
图片尺寸792x1120
裴启建《建筑工程制图与识图》说课课件ppt
图片尺寸1080x810
最新规范 建筑识图说课 建筑识图与构造 建筑施工图概述 建筑制图识图
图片尺寸1170x810
五 基础施工图读图示例 独立基础 返回主目录
图片尺寸1080x810
建筑制图与识图
图片尺寸1529x2213
建筑工程制图与识图
图片尺寸600x843
建筑工程制图与识图
图片尺寸478x676
五 基础施工图读图示例 独立基础 返回主目录
图片尺寸1080x810