建筑师工作室平面图

中国式——建筑师工作室
图片尺寸658x461
弥漫着清简艺术气息的设计工作室khosla建筑工作室
图片尺寸2000x2828
中国式——建筑师工作室
图片尺寸658x522
北建2021考研快题最nb解题—建筑师工作室设计,看完搬砖更有劲了!
图片尺寸3868x2416
弥漫着清简艺术气息的设计工作室khosla建筑工作室
图片尺寸2000x2828
城市再生建成时间:2017年设计单位:水石设计米川工作室主持建筑师
图片尺寸1600x1132
有花有鸟,有街有巷,上海市井中藏着一间建筑工作室
图片尺寸1700x780
设计 ##艺术家工作室 #别墅 #别墅设计 #景观设计 #建筑师事务
图片尺寸1080x1439
一个建筑师的家庭工作室 / betweenspaces,下层平面图
图片尺寸794x518
层云的相册-注册建筑师考试方案设计作图练习
图片尺寸1080x991
1933, giuseppe terragni 对于艺术家来说,生活与工作的关系在建筑上
图片尺寸564x1177
致正建筑工作室同济大学建筑与城市规划学院c楼
图片尺寸720x503
建筑师之家
图片尺寸1123x794
建筑师50万元爆改自用工作室,有风,有雨,有光,有梦想
图片尺寸640x417
工作室设计
图片尺寸660x821
工作室设计a3图_设计_建筑设计_服装工作室
图片尺寸1080x773
建筑师50万元爆改自用工作室有风有雨有光有梦想
图片尺寸640x417
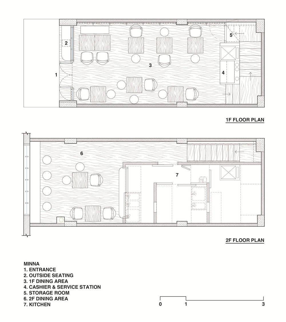
上海彦文建筑工作室位置: 中国上海乌鲁木齐路分类:餐厅建筑师:朱彦文
图片尺寸1000x1125
阿穆隆设计工作室
图片尺寸1200x776
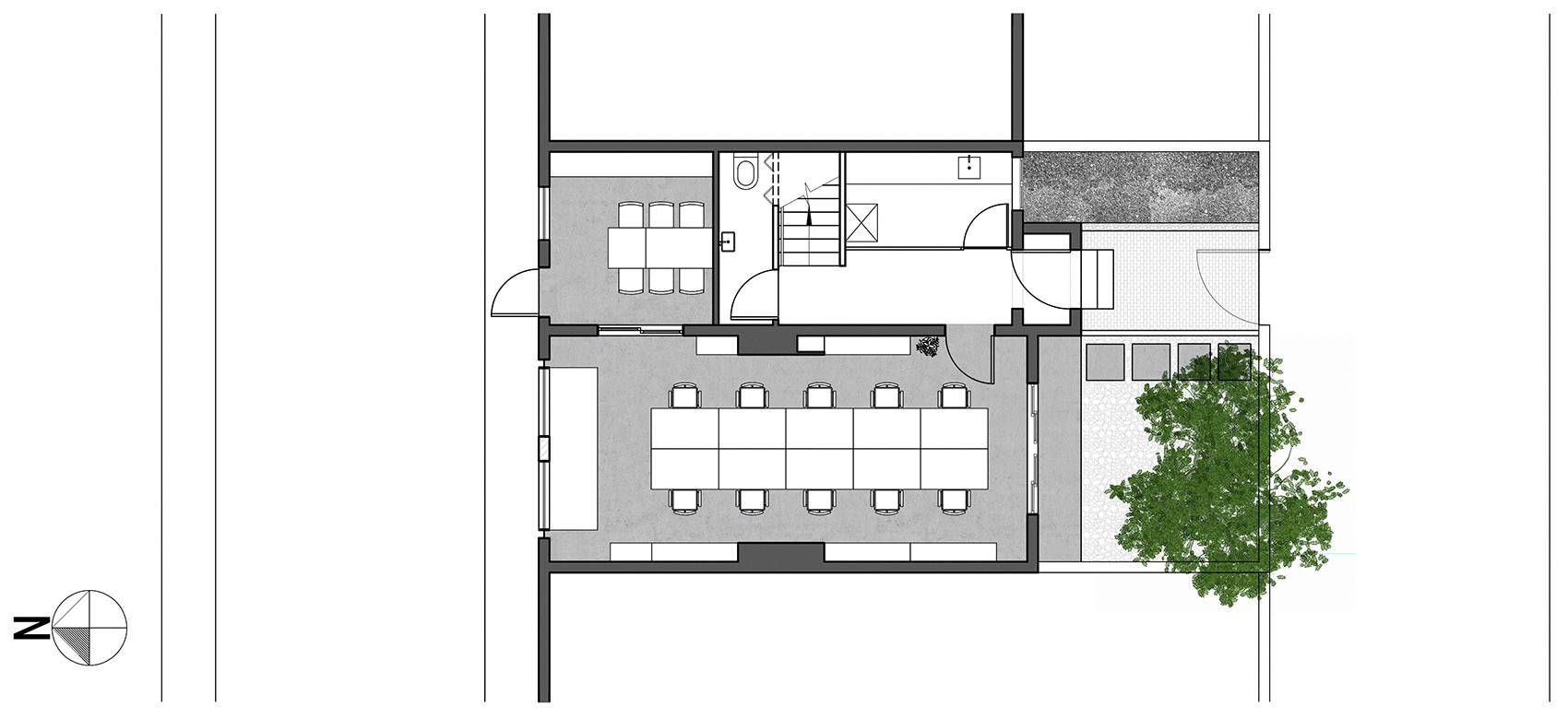
原首层平面图和现首层平面图 gro-建筑工作室第20张图片
图片尺寸1000x707