建筑构造节点详图

11个平屋面建筑构造节点详图
图片尺寸929x597
常用建筑构造
图片尺寸1440x1020
49个构件制作节点构造详图-建筑节点详图-筑龙建筑设计论坛
图片尺寸888x647
建筑节点详图,dwg格式】墙身泛水详图大样图墙板构造墙体节点外墙剖面
图片尺寸610x861
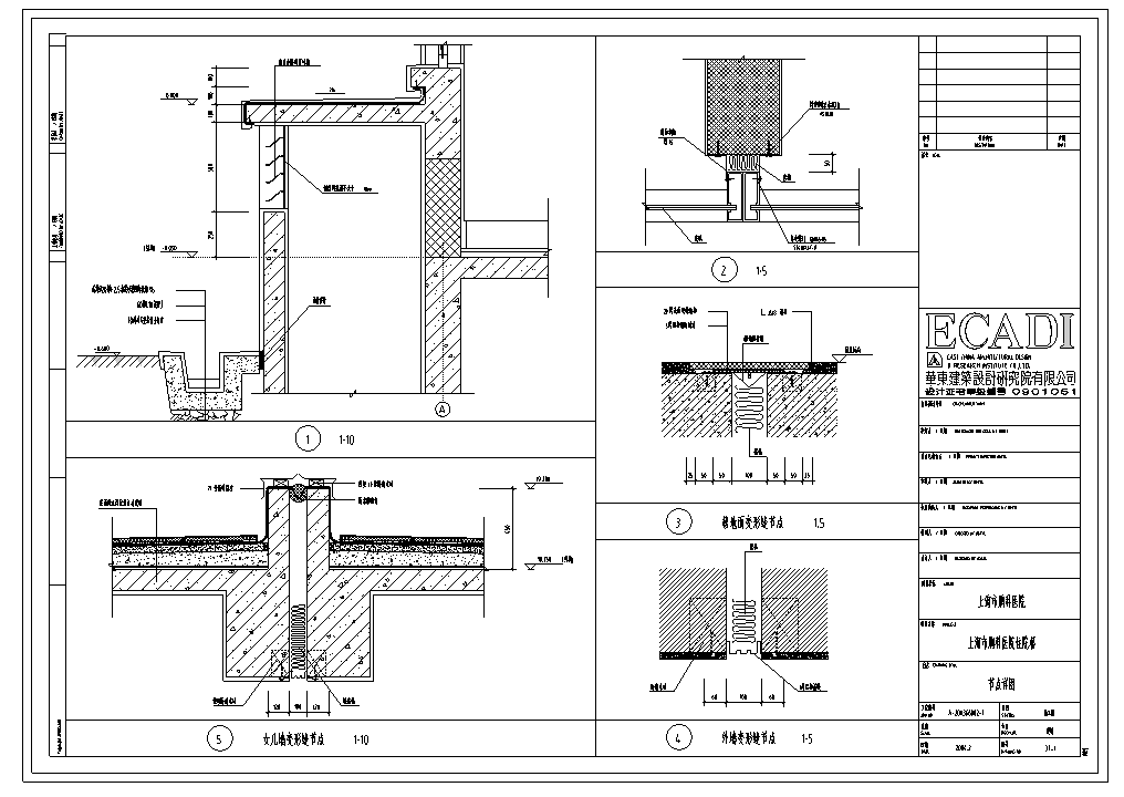
节点详图
图片尺寸1016x720
常用屋顶墙体建筑节点构造大样详图
图片尺寸610x861
关键词: 建筑节点详图墙体构造外墙饰面二层顶线角详图
图片尺寸333x387![[分享]某市科技馆全专业建筑设计施工图(cad 水电 结构 建筑)](https://i.ecywang.com/upload/1/img0.baidu.com/it/u=1102897035,956473076&fm=253&fmt=auto&app=138&f=JPEG?w=500&h=351)
[分享]某市科技馆全专业建筑设计施工图(cad 水电 结构 建筑)
图片尺寸969x680
节点详图 建筑节点previous next >
图片尺寸1648x1165
钢结构节点详图cad合集钢梁柱框架钢平台建筑标准构造设计cad素材
图片尺寸800x800
建筑构造强身节点构造详图
图片尺寸1154x1797
墙身节点详图的作用是与建筑平面图配合起来作为墙身施工的
图片尺寸550x898
各种建筑构造做法节点详图汇总
图片尺寸637x488
节点大样图
图片尺寸760x608
外围节点详图
图片尺寸1200x900
梯井
图片尺寸685x399
建筑节点屋顶设计pdf详图
图片尺寸700x464
多高层民用建筑钢结构节点构造详图-适用于全国各大建筑设计院及房
图片尺寸1440x1020
单元体幕墙节点图
图片尺寸1640x1171
23个外墙外保温建筑构造节点详图
图片尺寸825x576