开发商图纸

开发商的图纸
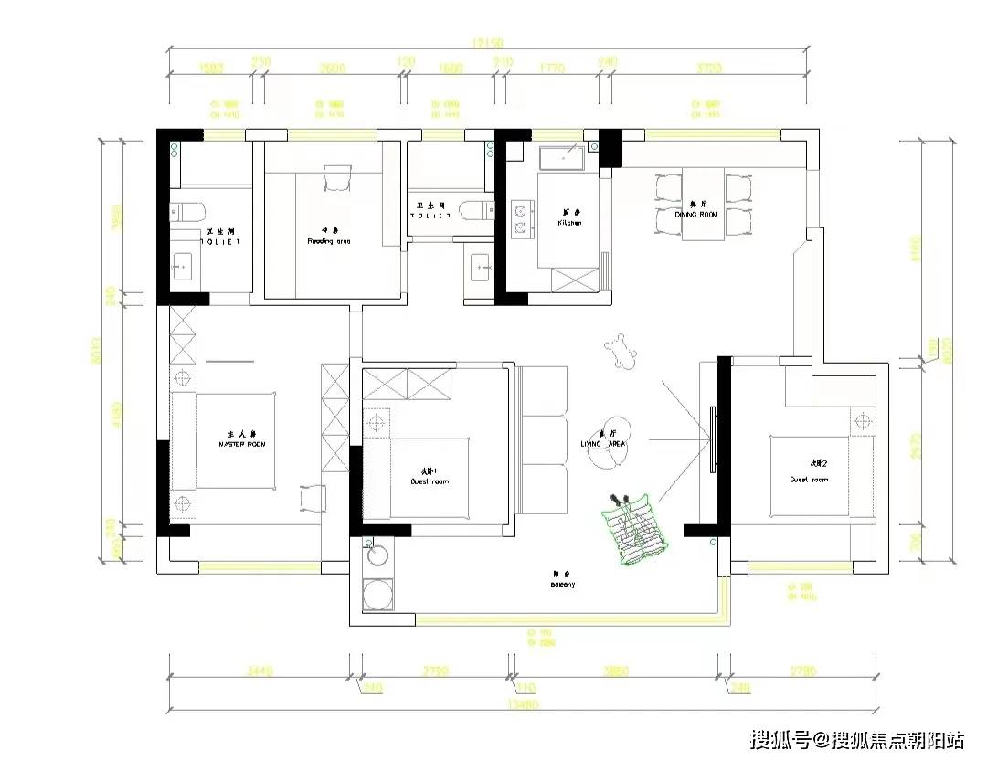
图片尺寸540x720
这是开发商的图纸,入户门可以到那个1200后面
图片尺寸960x1280
宁远县一品江山开发商变更图纸,欺骗边户业主
图片尺寸2736x3648
开发商给的图纸(标红的墙)
图片尺寸856x636
宁远县一品江山开发商变更图纸,欺骗边户业主
图片尺寸2736x3648
一般开发商想都不敢想.330平米的花园户型应该会让你惊叹不已
图片尺寸1779x1280
宁远县壹品江山开发商私自变更设计图纸施工_百姓呼声_红网
图片尺寸2736x3648
买房就要选靠谱开发商
图片尺寸1080x1440
这是开发商的户型图,可否请您帮忙科学而专业的改造一下此户型.
图片尺寸3264x2448
官方发布:前海颐湾府是哪个开发商建的,房价-户型图-楼盘详情
图片尺寸660x1117
帮忙解答一下,这个开发商设计的图纸规范吗?
图片尺寸690x1465
(强制断电通知) 同年,开发公示公示出,建筑图纸流出,政府仍给我们商户
图片尺寸1080x1440
开发商给的房型图纸是这样子的.
图片尺寸804x760
开发商把商业空调放到了小区里如何维权
图片尺寸1080x1439
畅销楼盘-汉京城6号,开发商基本信息,一房一价,地址,西安热销
图片尺寸740x3514
【龙华新房】溪山禾玺首府开发商预约通道丨溪山禾玺首府售楼处电话
图片尺寸1280x963
开发商公示调整方案
图片尺寸1080x1920
无锡锡山美的云开东方开发商电话美的云开东方售楼处地址美的云开东方
图片尺寸1080x833
眉山12345世家健康花园小区开发商违规建筑物与设计规划建设审批图
图片尺寸690x1423
官-山海丹华府开发商欢迎您-深圳山海丹华府售楼中心-楼盘详情
图片尺寸660x467