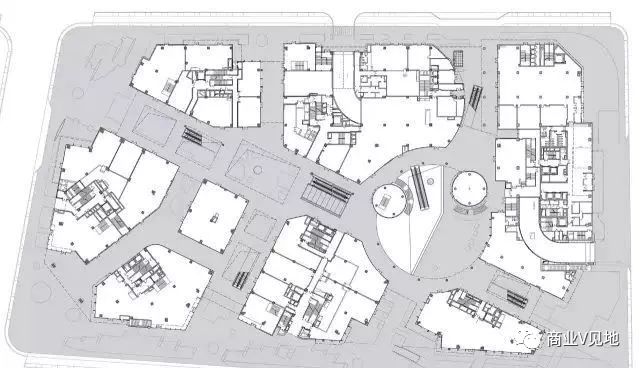
开放式街区平面图

保利聘请国内知名设计团队上海天华建筑设计公司操刀,以开放式街区的
图片尺寸1080x660
重庆市设计院专题讲座——《开放街区之争》
图片尺寸458x610![[湖北]现代开放商业街区 住宅建筑方案设计](https://i.ecywang.com/upload/1/img2.baidu.com/it/u=2798637836,4006833833&fm=253&fmt=auto&app=138&f=PNG?w=741&h=500)
[湖北]现代开放商业街区 住宅建筑方案设计
图片尺寸760x513
开放式街区经典案例解读
图片尺寸523x505![[湖北]现代开放商业街区 住宅建筑方案设计](https://i.ecywang.com/upload/1/img0.baidu.com/it/u=791517588,3910365033&fm=253&fmt=auto&app=138&f=PNG?w=760&h=486)
[湖北]现代开放商业街区 住宅建筑方案设计
图片尺寸760x486
临平新城150米新地标自带停机坪681户住宅开放式商业街区
图片尺寸1080x1000
港汇天地:以森林场景为主题的开放式街区
图片尺寸640x571
开放空间均有各自适宜的空间尺度,相互衔接形成开合有序的街区空间
图片尺寸1672x1674![[国外]开放式道路街区景观环境规划方案设计](https://i.ecywang.com/upload/1/img0.baidu.com/it/u=3569321577,3608405349&fm=253&fmt=auto&app=138&f=JPEG?w=605&h=500)
[国外]开放式道路街区景观环境规划方案设计
图片尺寸668x552
怎样让房产开发适应窄马路密路网开放街区
图片尺寸600x424
78城乡规划开放街区规划设计平面图
图片尺寸1056x1201
城市综合体如何衍变开放式街区或成主导新方向
图片尺寸1080x617![[天津]鼓楼商业街改造设计方案文本 总平面图](https://i.ecywang.com/upload/1/img2.baidu.com/it/u=1766125249,680248259&fm=253&fmt=auto&app=138&f=PNG?w=500&h=225)
[天津]鼓楼商业街改造设计方案文本 总平面图
图片尺寸760x342
>瑞虹新城—混合功能开发的开放式社区
图片尺寸640x368
怎样让房产开发适应窄马路密路网开放街区
图片尺寸600x205
临平新城150米新地标自带停机坪681户住宅开放式商业街区
图片尺寸1080x1065
总平面图.png
图片尺寸760x368
深圳大运天地平面图湖光美景如画想要享受美食的同时,与自然实时互动
图片尺寸700x1006![[湖北]现代开放商业街区 住宅建筑方案设计](https://i.ecywang.com/upload/1/img2.baidu.com/it/u=492845366,3148799428&fm=253&fmt=auto&app=138&f=PNG?w=728&h=500)
[湖北]现代开放商业街区 住宅建筑方案设计
图片尺寸760x522
72总平面图
图片尺寸720x518