弧形吊顶节点

室内施工图弧形天花吊顶节点大样图分享二 #室内设计#0202#室内
图片尺寸961x1280
室内施工图弧形天花吊顶节点大样图分享二 #室内设计#0202#室内
图片尺寸961x1280
设计师一定要知道的弧形吊顶做法节点大样图 分享一种圆弧形
图片尺寸960x1280
室内施工图小圆弧叠级天花吊顶节点大样图 #室内设计# #cad施工图深化
图片尺寸960x1280
室内设计施工图吊顶弧形包梁做法大样图分享.#装修设计 #室内 - 抖音
图片尺寸1242x1660
室内施工图圆弧灯槽包梁吊顶节点大样图分享 在我们的节点大样图
图片尺寸960x1280
室内施工图不同圆弧形天花吊顶节点大样图 #室内设计# #室内设计培训
图片尺寸960x1280
石膏板吊顶节点图(弧形石膏线灯槽造型)
图片尺寸1800x1777
室内施工图弧形反光灯槽吊顶节点大样图分享 #室内设计# #室内设计
图片尺寸960x1280
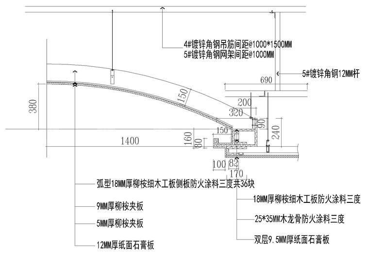
室内通用天花吊顶节点(材料拼接,龙骨等)
图片尺寸760x537
天花石膏板吊顶工艺|细节节点 一,石膏线灯槽造型吊顶 二,弧形石膏线
图片尺寸960x1280
室内通用天花吊顶节点(材料拼接,龙骨等)
图片尺寸760x537
请问圆弧形吊顶的乳胶漆如何计算谢谢专家
图片尺寸1137x846
弧形吊顶的节点图室内设计师该怎么画
图片尺寸1080x814
室内通用天花吊顶节点(材料拼接,龙骨等)
图片尺寸760x537
室内施工图弧形天花吊顶节点大样图分享二 #室内设计#0202#室内
图片尺寸960x1280
弧形异形吊顶详图施工图下载
图片尺寸1600x1202
施工图深化设计穹弧斜顶细节做法分享
图片尺寸1080x584
请教!内行院士,弯曲弧形吊顶如何绘制,如我cad节点图
图片尺寸997x483
弧形铝单板天花吊顶套什么定额
图片尺寸1014x528