强制循环蒸发器设计

一种多效强制循环蒸发器的制作方法
图片尺寸1000x488
全强制循环蒸发器制造技术
图片尺寸1496x1373
一种三效强制循环蒸发器的制作方法
图片尺寸285x443
强制循环蒸发器供应强制循环蒸发器生产强制循环蒸发器价格
图片尺寸566x307
一种mvr强制循环蒸发器
图片尺寸444x418
一种强制循环蒸发器的制作方法
图片尺寸310x443
周村区强制循环蒸发器图纸
图片尺寸348x534
工业废水污水处理mvr单效强制循环蒸发器的设计及注意事项
图片尺寸640x469
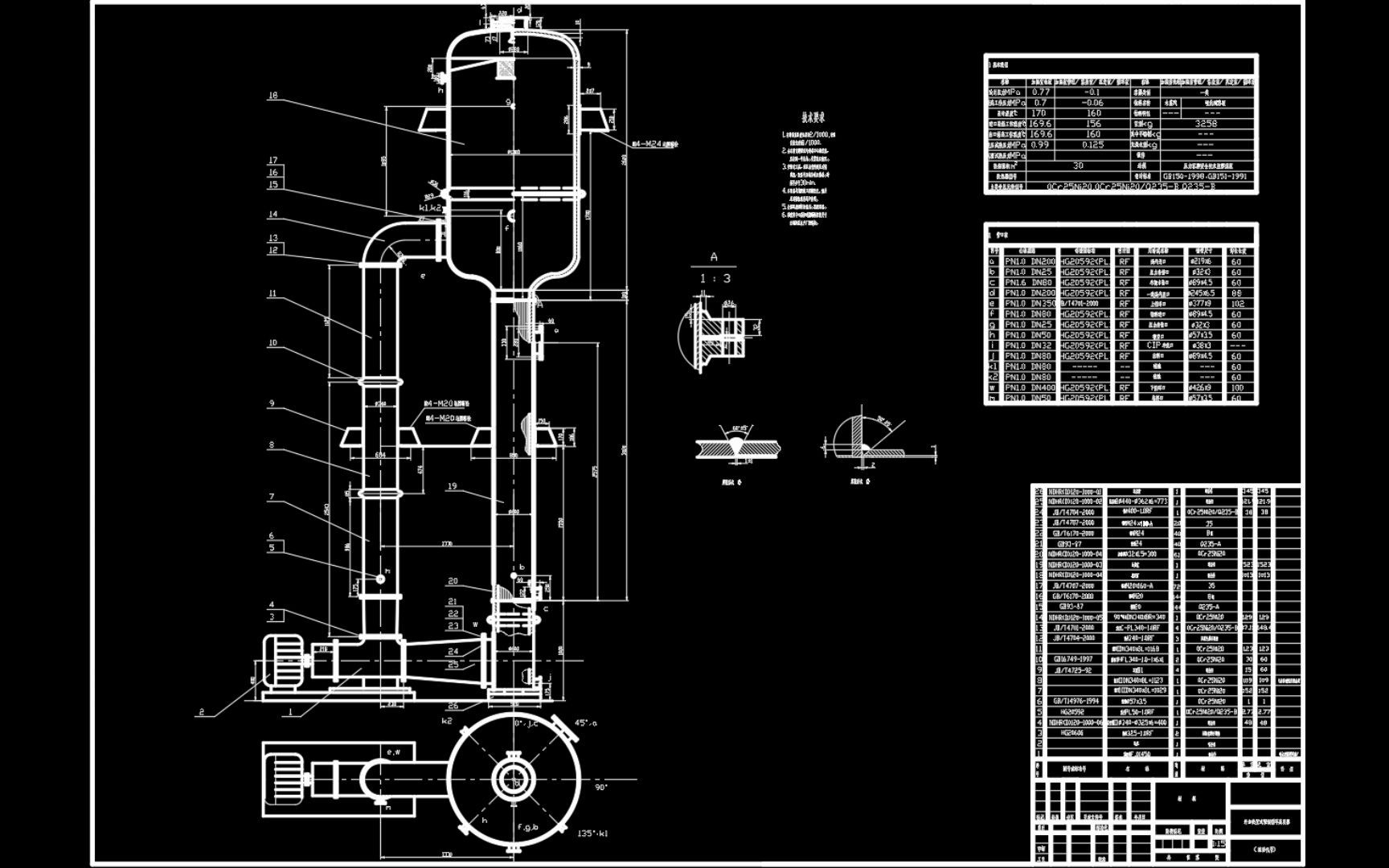
外加热强制循环蒸发器装配(cad)
图片尺寸1728x1080
强制循环蒸发结晶器
图片尺寸454x442
一种强制循环蒸发器的制作方法
图片尺寸877x1000
港荣水务强制循环fc蒸发器
图片尺寸489x489
外加热强制循环蒸发器装配图dwg图纸
图片尺寸669x492
一种强制循环蒸发器
图片尺寸909x1000
强制循环结晶蒸发器
图片尺寸800x800
一种低耗能型强制循环蒸发器的制作方法
图片尺寸851x1000
单效强制循环蒸发器
图片尺寸478x618
mvr强制循环蒸发器知识简介
图片尺寸660x687
一种强制循环mvr蒸发器
图片尺寸455x335
cn210674241u_一种低耗能型强制循环蒸发器有效
图片尺寸850x1000