快闪店平面图设计

广州正佳广场 概念快闪店策划设计
图片尺寸1280x720
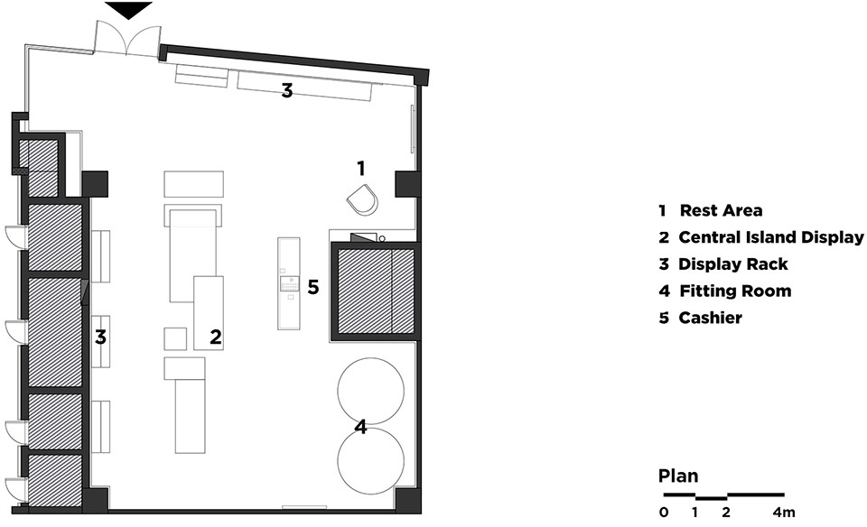
平面图
图片尺寸1810x1013
lenslab- inception 盗梦空间 br/>电影中梦境时空的设计,梦境层次的
图片尺寸3508x2480
乐玩公社项目地址 丨中国·成都·远洋太古里项目面积 丨24﹐设计时间
图片尺寸1000x831
on a soft textured fabric▼ 设计师亲手缝纫的柔软织物hung up
图片尺寸1700x1435
信息——项目名称:麦当劳美式浪漫集装箱快闪店项目地址:深圳设计公司
图片尺寸1775x1748
bibilee深业上城快闪店,深圳 / moc design office - 谷德设计网
图片尺寸960x584
信息——项目名称:麦当劳美式浪漫集装箱快闪店项目地址:深圳设计公司
图片尺寸2232x1281
store在拉法耶艺术中心的平面图,在每一个关键环节都做了精心地设计
图片尺寸1280x961
"啤酒游乐园"线下快闪店 / glamo studio,平面图
图片尺寸1379x1000
平面设计图动线图扭蛋机自拍区域(圆圈内镂空,人可以走进去)门票(香水
图片尺寸1280x943
承启造物非遗快闪店-uua建筑师事务所-商业展示空间设计案例-筑龙室内
图片尺寸1414x1000
绝对伏特加路演活动 快闪店|空间|展陈设计|lancexi_原创作品-站酷
图片尺寸1280x962
快闪店/案例|空间|商业空间设计|xiao494064461_原创作品-站酷(zcool)
图片尺寸1280x960
米尚丽零售设计网, 【1024期】法国的知名香氛品牌diptyque,60周年
图片尺寸670x345
zaraxle labo联名快闪店手绘设计|平面|其他平面|liuxuxucen - 原创
图片尺寸1280x765
为地产公司做的各类设计过程稿和头脑风暴
图片尺寸1280x960
概念草图02京喜快闪店是以京喜中秋购物节为延续,联合
图片尺寸1080x480
改造方案平面设计效果图
图片尺寸580x429
c4d源-快闪店设计
图片尺寸1280x836